Woning Burgemeester Sprengerlaan 22 Ewijk

Burgemeester Sprengerlaan 22, 6644DV Ewijk

Ontvang updates voor Ewijk Vording-3

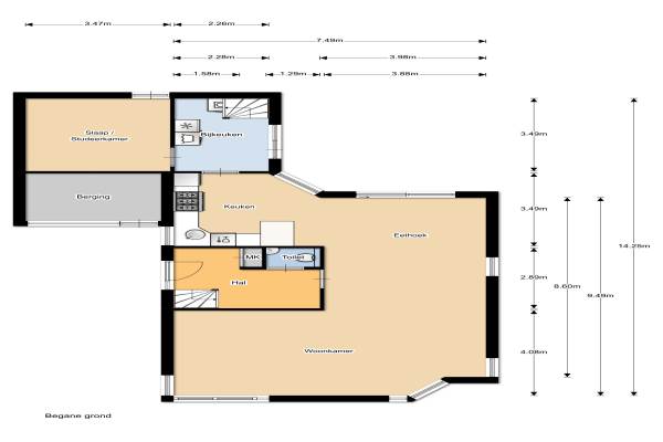
Het adres van deze woning uit 1993 is Burgemeester Sprengerlaan 22 te Ewijk. Het pand heeft een oppervlakte van 168m² en een perceeloppervlakte van 682m² en heeft 5 kamers kamers waarvan 4 slaapkamers. De geschatte waarde van deze woning is € 439.000.

Bekijk alle woningen in Ewijk Vording-3

Gegevens van Eengezinswoning, vrijstaande woning

Bouwjaar
1993
Geschatte waarde
€ 439.000
Oppervlakte
168 m2
Inhoud
550 m3
Aantal kamers
5 kamers
Slaapkamers
4
Badkamers
1 badkamer en 1 apart toilet
Soort bouw
Bestaande bouw
Eigendomssituatie
Volle eigendom
Ligging
Aan rustige weg, in woonwijk en vrij uitzicht
Tuin
Achtertuin, voortuin, zijtuin en zonneterras
Achtertuin
276 m² (12m diep en 23m breed)

Voorzieningen in de buurt

Boodschappen0,8 km
Grote supermarkt0,8 km
Cafetaria0,7 km
Restaurant0,8 km
Huisarts0,6 km
Ziekenhuis10,1 km
Kinderdagverblijf0,6 km
BSO0,6 km
Alle voorzieningen in Ewijk Vording-3

Binnenkijken bij Burgemeester Sprengerlaan 22 te Ewijk

Meer meldingen in deze omgeving

Nieuw bedrijf
November 2025
Burgemeester Blessinglaan 50, 6644DD Ewijk

112 melding
Woensdag 12-11-2025 om 20:36
Hoogstraat, Ewijk

112 melding
Woensdag 12-11-2025 om 20:36
Hoogstraat, Ewijk

Nieuw bedrijf
November 2025
Citer 20, 6644DZ Ewijk

Binnenkijken bij
Donderdag 9-10-2025
Harp 22, 6644DH Ewijk

Binnenkijken bij
Donderdag 25-9-2025
Burgemeester Sprengerlaan 2, 6644DV Ewijk

Nieuw bedrijf
Augustus 2025
Luit 19, 6644DS Ewijk

Binnenkijken bij
Zondag 20-7-2025
Harp 31, 6644DE Ewijk

Direct een e-mail ontvangen bij nieuwe meldingen in deze regio?

Meld je dan GRATIS aan voor de Oozo Alert service voor Ewijk Vording-3

Instellen

Meer nieuws in Ewijk Vording-3

Weten hoe eenvoudig het is om af te vallen? Zonder pillen en smeersels en zonder je in het zweet te werken!
Kijk op eenvoudig-afvallen.nl

© 2012 - 2025 OOZO.nl - info@oozo.nl - Gegevens verwijderen? | Disclaimer | Privacy statement