Woning Koningstraat 133a Beverwijk

Koningstraat 133a, 1941BC Beverwijk

Ontvang updates voor Koningstraat

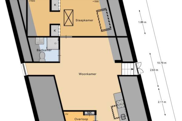
Het adres van deze woning uit 1775 is Koningstraat 133a te Beverwijk. Het pand heeft een oppervlakte van 62m² en heeft 3 kamers kamers waarvan 1 slaapkamers. De geschatte waarde van deze woning is € 249.500.

Bekijk alle woningen in Koningstraat

Gegevens van Bovenwoning (appartement)

Bouwjaar
1775
Geschatte waarde
€ 249.500
Oppervlakte
62 m2
Inhoud
228 m3
Aantal kamers
3 kamers
Slaapkamers
1
Badkamers
1 badkamer
Soort bouw
Bestaande bouw
Eigendomssituatie
Volle eigendom
Ligging
Aan drukke weg en in centrum

Voorzieningen in de buurt

Boodschappen0,2 km
Grote supermarkt0,5 km
Cafetaria0,1 km
Restaurant0,1 km
Huisarts0,6 km
Ziekenhuis0,8 km
Kinderdagverblijf0,5 km
BSO0,5 km
Alle voorzieningen in Koningstraat

Binnenkijken bij Koningstraat 133a te Beverwijk

Meer meldingen in deze omgeving

112 melding
Donderdag 26-2-2026 om 11:00
Meijendel, 1941CM Beverwijk

112 melding
Woensdag 25-2-2026 om 19:35
Koningstraat, 1941BA Beverwijk

112 melding
Woensdag 25-2-2026 om 17:47
Koningstraat, 1941BA Beverwijk

112 melding
Woensdag 25-2-2026 om 16:15
Koningstraat, 1941BG Beverwijk

112 melding
Woensdag 25-2-2026 om 16:15
Koningstraat, 1941BG Beverwijk

112 melding
Woensdag 25-2-2026 om 15:13
Breestraat, 1941EL Beverwijk

112 melding
Woensdag 25-2-2026 om 13:36
Meijendel, 1941CM Beverwijk

112 melding
Woensdag 25-2-2026 om 13:36
Meijendel, 1941CM Beverwijk

Direct een e-mail ontvangen bij nieuwe meldingen in deze regio?

Meld je dan GRATIS aan voor de Oozo Alert service voor Koningstraat

Instellen

Meer nieuws in Koningstraat

Weten hoe eenvoudig het is om af te vallen? Zonder pillen en smeersels en zonder je in het zweet te werken!
Kijk op eenvoudig-afvallen.nl

© 2012 - 2026 OOZO.nl - info@oozo.nl - Gegevens verwijderen? | Disclaimer | Privacy statement