Woning de Witstraat 2 Beverwijk

de Witstraat 2, 1944RD Beverwijk

Ontvang updates voor Kuenenplein

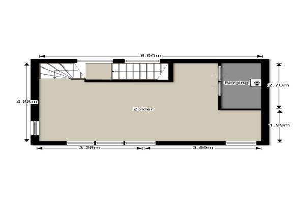
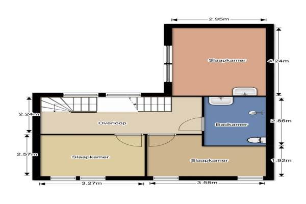
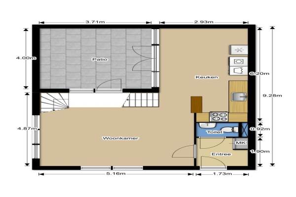
Het adres van deze woning uit 2007 is de Witstraat 2 te Beverwijk. Het pand heeft een oppervlakte van 127m² en een perceeloppervlakte van 104m² en heeft 6 kamers kamers waarvan 5 slaapkamers. De geschatte waarde van deze woning is € 259.000.

Bekijk alle woningen in Kuenenplein

Gegevens van Eengezinswoning, eindwoning

Bouwjaar
2007
Geschatte waarde
€ 259.000
Oppervlakte
127 m2
Inhoud
465 m3
Aantal kamers
6 kamers
Slaapkamers
5
Badkamers
1 badkamer en 1 apart toilet
Soort bouw
Bestaande bouw
Eigendomssituatie
Volle eigendom
Ligging
Aan rustige weg en in woonwijk
Tuin
Voortuin en plaats

Voorzieningen in de buurt

Boodschappen0,3 km
Grote supermarkt0,3 km
Cafetaria0,3 km
Restaurant0,5 km
Huisarts0,7 km
Ziekenhuis2,1 km
Kinderdagverblijf0,7 km
BSO0,8 km
Alle voorzieningen in Kuenenplein

Binnenkijken bij de Witstraat 2 te Beverwijk

Meer meldingen in deze omgeving

112 melding
Vrijdag 7-11-2025 om 11:41
Hilbersplein, 1944RA Beverwijk

112 melding
Donderdag 6-11-2025 om 08:26
Laan van Kanaän, 1944RL Beverwijk

112 melding
Woensdag 5-11-2025 om 11:55
Bremmersstraat, 1944 Beverwijk

112 melding
Dinsdag 4-11-2025 om 12:32
Bremmersstraat, 1944 Beverwijk

112 melding
Dinsdag 4-11-2025 om 12:32
Bremmersstraat, 1944 Beverwijk

112 melding
Dinsdag 4-11-2025 om 11:29
Kuenenplein, 1944RK Beverwijk

112 melding
Maandag 3-11-2025 om 10:02
Veldstraat, 1944RW Beverwijk

112 melding
Zondag 2-11-2025 om 02:20
Bremmersstraat, Beverwijk

Direct een e-mail ontvangen bij nieuwe meldingen in deze regio?

Meld je dan GRATIS aan voor de Oozo Alert service voor Kuenenplein

Instellen

Meer nieuws in Kuenenplein

Weten hoe eenvoudig het is om af te vallen? Zonder pillen en smeersels en zonder je in het zweet te werken!
Kijk op eenvoudig-afvallen.nl

© 2012 - 2025 OOZO.nl - info@oozo.nl - Gegevens verwijderen? | Disclaimer | Privacy statement