Woning Arendsweg 179 Beverwijk

Arendsweg 179, 1944JD Beverwijk

Ontvang updates voor Oostertuinen

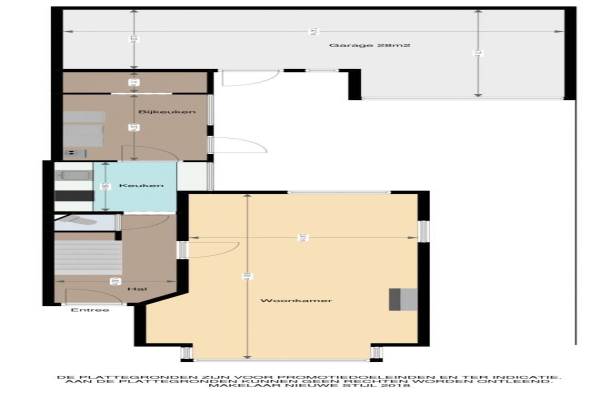
Het adres van deze woning uit 1922 is Arendsweg 179 te Beverwijk. Het pand heeft een oppervlakte van 93m² en een perceeloppervlakte van 191m² en heeft 5 kamers kamers waarvan 3 slaapkamers. De geschatte waarde van deze woning is € 235.000.

Bekijk alle woningen in Oostertuinen

Gegevens van Eengezinswoning, vrijstaande woning

Bouwjaar
1922
Geschatte waarde
€ 235.000
Oppervlakte
93 m2
Inhoud
334 m3
Aantal kamers
5 kamers
Slaapkamers
3
Badkamers
1 badkamer
Soort bouw
Bestaande bouw
Eigendomssituatie
Volle eigendom
Ligging
In woonwijk
Tuin
Achtertuin en voortuin
Achtertuin
26 m² (5,3m diep en 5,3m breed)

Voorzieningen in de buurt

Boodschappen0,4 km
Grote supermarkt0,4 km
Cafetaria0,3 km
Restaurant0,4 km
Huisarts0,5 km
Ziekenhuis1,8 km
Kinderdagverblijf0,3 km
BSO0,8 km
Alle voorzieningen in Oostertuinen

Binnenkijken bij Arendsweg 179 te Beverwijk

Meer meldingen in deze omgeving

112 melding
Dinsdag 14-10-2025 om 09:40
Moerdijkstraat, 1944VJ Beverwijk

112 melding
Dinsdag 14-10-2025 om 08:50
Arendsweg, 1944JC Beverwijk

112 melding
Maandag 13-10-2025 om 18:13
Moerdijkstraat, 1944VJ Beverwijk

112 melding
Maandag 13-10-2025 om 18:13
Moerdijkstraat, 1944VJ Beverwijk

112 melding
Maandag 13-10-2025 om 10:47
Wijk aan Duinerweg, 1944TS Beverwijk

112 melding
Maandag 13-10-2025 om 07:57
Laan van Kanaän, 1944RS Beverwijk

112 melding
Maandag 13-10-2025 om 07:44
Grebbestraat, 1944VC Beverwijk

112 melding
Vrijdag 10-10-2025 om 11:00
Oostertuinen, 1944SB Beverwijk

Direct een e-mail ontvangen bij nieuwe meldingen in deze regio?

Meld je dan GRATIS aan voor de Oozo Alert service voor Oostertuinen

Instellen

Meer nieuws in Oostertuinen

Weten hoe eenvoudig het is om af te vallen? Zonder pillen en smeersels en zonder je in het zweet te werken!
Kijk op eenvoudig-afvallen.nl

© 2012 - 2025 OOZO.nl - info@oozo.nl - Gegevens verwijderen? | Disclaimer | Privacy statement