Woning Graaf Janstraat 49 Beverwijk

Graaf Janstraat 49, 1947KE Beverwijk

Ontvang updates voor Oud Sportpark

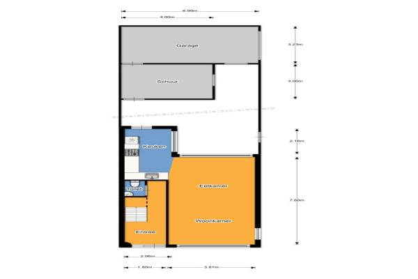
Het adres van deze woning uit 1928 is Graaf Janstraat 49 te Beverwijk. Het pand heeft een oppervlakte van 87m² en een perceeloppervlakte van 151m² en heeft 4 kamers kamers waarvan 3 slaapkamers. De geschatte waarde van deze woning is € 225.000.

Bekijk alle woningen in Oud Sportpark

Gegevens van Eengezinswoning, 2-onder-1-kapwoning

Bouwjaar
1928
Geschatte waarde
€ 225.000
Oppervlakte
87 m2
Inhoud
280 m3
Aantal kamers
4 kamers
Slaapkamers
3
Badkamers
1 badkamer en 1 apart toilet
Soort bouw
Bestaande bouw
Eigendomssituatie
Volle eigendom
Ligging
Aan rustige weg en in woonwijk
Tuin
Achtertuin en voortuin
Achtertuin
48 m² (8m diep en 6m breed)

Voorzieningen in de buurt

Boodschappen0,3 km
Grote supermarkt0,3 km
Cafetaria0,2 km
Restaurant0,3 km
Huisarts0,4 km
Ziekenhuis1,3 km
Kinderdagverblijf0,8 km
BSO1,1 km
Alle voorzieningen in Oud Sportpark

Binnenkijken bij Graaf Janstraat 49 te Beverwijk

Meer meldingen in deze omgeving

112 melding
Maandag 8-12-2025 om 08:49
Oever, 1947KB Beverwijk

112 melding
Zaterdag 6-12-2025 om 15:32
Oever, 1947KB Beverwijk

112 melding
Donderdag 4-12-2025 om 10:09
Van Borsselestraat, 1947JL Beverwijk

Binnenkijken bij
Dinsdag 2-12-2025
van Borsselestraat 37, 1947JL Beverwijk

112 melding
Maandag 1-12-2025 om 11:40
Hendrik Mandeweg, 1947HB Beverwijk

112 melding
Zondag 30-11-2025 om 18:18
Van Borsselestraat, 1947JL Beverwijk

112 melding
Zondag 30-11-2025 om 13:43
Hendrik Mandeweg, 1947HB Beverwijk

112 melding
Zondag 30-11-2025 om 13:43
Hendrik Mandeweg, 1947HB Beverwijk

Direct een e-mail ontvangen bij nieuwe meldingen in deze regio?

Meld je dan GRATIS aan voor de Oozo Alert service voor Oud Sportpark

Instellen

Meer nieuws in Oud Sportpark

Weten hoe eenvoudig het is om af te vallen? Zonder pillen en smeersels en zonder je in het zweet te werken!
Kijk op eenvoudig-afvallen.nl

© 2012 - 2025 OOZO.nl - info@oozo.nl - Gegevens verwijderen? | Disclaimer | Privacy statement