Woning Westdijk 30 Heinenoord

Westdijk 30, 3274KG Heinenoord

Ontvang updates voor Goidschalxoord

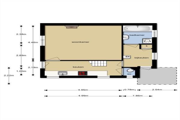
Het adres van deze woning uit 1920 is Westdijk 30 te Heinenoord. Het pand heeft een oppervlakte van 56m² en een perceeloppervlakte van 119m² en heeft 3 kamers kamers waarvan 2 slaapkamers. De geschatte waarde van deze woning is € 159.950.

Bekijk alle woningen in Goidschalxoord

Gegevens van Eengezinswoning, hoekwoning

Bouwjaar
1920
Geschatte waarde
€ 159.950
Oppervlakte
56 m2
Inhoud
199 m3
Aantal kamers
3 kamers
Slaapkamers
2
Soort bouw
Bestaande bouw
Eigendomssituatie
Volle eigendom
Ligging
Vrij uitzicht en landelijk gelegen
Tuin
Achtertuin en voortuin
Achtertuin
16 m² (8m diep en 8m breed)

Voorzieningen in de buurt

Binnenkijken bij Westdijk 30 te Heinenoord

Meer meldingen in deze omgeving

112 melding
Maandag 23-3-2026 om 14:23
Goidschalxoordsedijk, 3274BH Heinenoord

112 melding
Zaterdag 21-3-2026 om 13:22
Goidschalxoordsedijk, 3274BH Heinenoord

112 melding
Zaterdag 21-3-2026 om 11:03
Goidschalxoordsedijk, 3274BH Heinenoord

112 melding
Dinsdag 17-3-2026 om 18:00
Goidschalxoordsedijk, 3274BG Heinenoord

112 melding
Zondag 15-3-2026 om 22:29
Goidschalxoordsedijk, 3274BH Heinenoord

112 melding
Zondag 15-3-2026 om 10:49
Goidschalxoordsedijk, 3274BH Heinenoord

112 melding
Zondag 15-3-2026 om 10:49
Goidschalxoordsedijk, 3274BH Heinenoord

112 melding
Vrijdag 13-2-2026 om 13:06
Goidschalxoordsedijk, 3274BH Heinenoord

Direct een e-mail ontvangen bij nieuwe meldingen in deze regio?

Meld je dan GRATIS aan voor de Oozo Alert service voor Goidschalxoord

Instellen

Meer nieuws in Goidschalxoord

Weten hoe eenvoudig het is om af te vallen? Zonder pillen en smeersels en zonder je in het zweet te werken!
Kijk op eenvoudig-afvallen.nl

© 2012 - 2026 OOZO.nl - info@oozo.nl - Gegevens verwijderen? | Disclaimer | Privacy statement