Woning Maashofje 22 Maasdam

Maashofje 22, 3299CC Maasdam

Ontvang updates voor Maasdam nieuwbouw

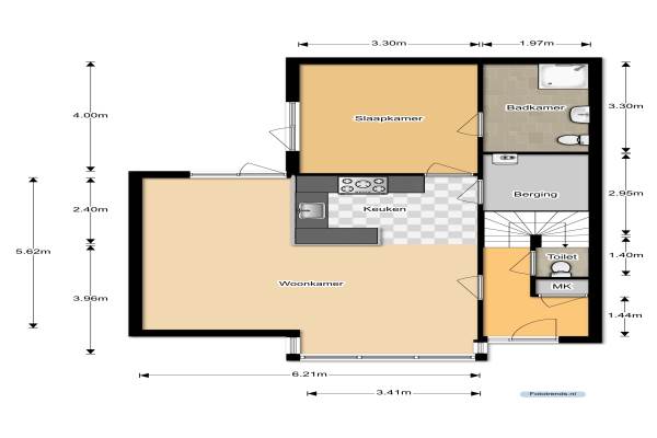
Het adres van deze woning uit 2011 is Maashofje 22 te Maasdam. Het pand heeft een oppervlakte van 100m² en een perceeloppervlakte van 169m² en heeft 3 kamers kamers waarvan 2 slaapkamers. De geschatte waarde van deze woning is € 307.500.

Bekijk alle woningen in Maasdam nieuwbouw

Gegevens van Eengezinswoning, 2-onder-1-kapwoning

Bouwjaar
2011
Geschatte waarde
€ 307.500
Oppervlakte
100 m2
Inhoud
350 m3
Aantal kamers
3 kamers
Slaapkamers
2
Badkamers
2 badkamers en 1 apart toilet
Soort bouw
Bestaande bouw
Eigendomssituatie
Volle eigendom
Ligging
Aan rustige weg en in woonwijk
Tuin
Achtertuin en zijtuin

Voorzieningen in de buurt

Binnenkijken bij Maashofje 22 te Maasdam

Meer meldingen in deze omgeving

112 melding
Maandag 24-11-2025 om 21:05
Vliet, 3299XK Maasdam

112 melding
Maandag 24-11-2025 om 15:35
Trambaan, 3299BN Maasdam

112 melding
Maandag 24-11-2025 om 12:46
Vliet, 3299XL Maasdam

112 melding
Zondag 23-11-2025 om 22:31
Trambaan, 3299BN Maasdam

112 melding
Zondag 23-11-2025 om 21:11
Trambaan, 3299BN Maasdam

112 melding
Zondag 23-11-2025 om 21:11
Trambaan, 3299BN Maasdam

112 melding
Zondag 23-11-2025 om 15:30
Fazant, 3299BS Maasdam

112 melding
Zondag 23-11-2025 om 15:30
Fazant, 3299BS Maasdam

Direct een e-mail ontvangen bij nieuwe meldingen in deze regio?

Meld je dan GRATIS aan voor de Oozo Alert service voor Maasdam nieuwbouw

Instellen

Meer nieuws in Maasdam nieuwbouw

Weten hoe eenvoudig het is om af te vallen? Zonder pillen en smeersels en zonder je in het zweet te werken!
Kijk op eenvoudig-afvallen.nl

© 2012 - 2025 OOZO.nl - info@oozo.nl - Gegevens verwijderen? | Disclaimer | Privacy statement