Woning Laan van Westmolen 77 Mijnsheerenland

Laan van Westmolen 77, 3271BJ Mijnsheerenland

Ontvang updates voor Uitbreiding Dorp

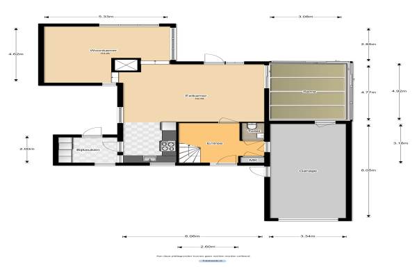
Het adres van deze woning uit 1978 is Laan van Westmolen 77 te Mijnsheerenland. Het pand heeft een oppervlakte van 173m² en een perceeloppervlakte van 732m² en heeft 6 kamers kamers waarvan 4 slaapkamers. De geschatte waarde van deze woning is € 485.000.

Bekijk alle woningen in Uitbreiding Dorp

Gegevens van Villa, geschakelde woning

Bouwjaar
1978
Geschatte waarde
€ 485.000
Oppervlakte
173 m2
Inhoud
565 m3
Aantal kamers
6 kamers
Slaapkamers
4
Badkamers
2 badkamers en 3 aparte toiletten
Soort bouw
Bestaande bouw
Eigendomssituatie
Volle eigendom
Ligging
In woonwijk en vrij uitzicht
Tuin
Achtertuin, voortuin, zijtuin en patio/atrium
Achtertuin
414 m² (18m diep en 23m breed)

Voorzieningen in de buurt

Binnenkijken bij Laan van Westmolen 77 te Mijnsheerenland

Meer meldingen in deze omgeving

112 melding
Dinsdag 25-11-2025 om 08:28
Laan van Westmolen, 3271BJ Mijnsheerenland

112 melding
Maandag 24-11-2025 om 19:41
Laan van Westmolen, 3271BJ Mijnsheerenland

112 melding
Maandag 24-11-2025 om 18:38
Laan van Westmolen, 3271BJ Mijnsheerenland

112 melding
Maandag 24-11-2025 om 18:14
Laan van Westmolen, Mijnsheerenland

112 melding
Maandag 24-11-2025 om 15:36
Stelleveld, 3271DB Mijnsheerenland

112 melding
Zondag 23-11-2025 om 23:48
Laan van Westmolen, 3271BJ Mijnsheerenland

112 melding
Zondag 23-11-2025 om 23:48
Laan van Westmolen, 3271BJ Mijnsheerenland

112 melding
Zondag 23-11-2025 om 23:02
Stelleveld, 3271DB Mijnsheerenland

Direct een e-mail ontvangen bij nieuwe meldingen in deze regio?

Meld je dan GRATIS aan voor de Oozo Alert service voor Uitbreiding Dorp

Instellen

Meer nieuws in Uitbreiding Dorp

Weten hoe eenvoudig het is om af te vallen? Zonder pillen en smeersels en zonder je in het zweet te werken!
Kijk op eenvoudig-afvallen.nl

© 2012 - 2025 OOZO.nl - info@oozo.nl - Gegevens verwijderen? | Disclaimer | Privacy statement