Woning Gele lis 16 Puttershoek

Gele lis 16, 3297WC Puttershoek

Ontvang updates voor Plan De Grienden

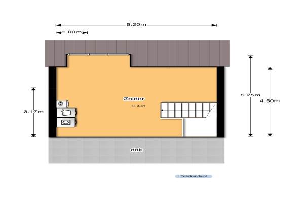
Het adres van deze woning uit 2003 is Gele lis 16 te Puttershoek. Het pand heeft een oppervlakte van 120m² en een perceeloppervlakte van 150m² en heeft 4 kamers kamers waarvan 3 slaapkamers. De geschatte waarde van deze woning is € 289.000.

Bekijk alle woningen in Plan De Grienden

Gegevens van Eengezinswoning, tussenwoning

Bouwjaar
2003
Geschatte waarde
€ 289.000
Oppervlakte
120 m2
Inhoud
403 m3
Aantal kamers
4 kamers
Slaapkamers
3
Badkamers
1 badkamer en 1 apart toilet
Soort bouw
Bestaande bouw
Eigendomssituatie
Volle eigendom
Ligging
In woonwijk
Tuin
Achtertuin en voortuin
Achtertuin
63 m² (12,5m diep en 5m breed)

Voorzieningen in de buurt

Binnenkijken bij Gele lis 16 te Puttershoek

Meer meldingen in deze omgeving

112 melding
Maandag 15-12-2025 om 11:07
Penningkruid, 3297WG Puttershoek

112 melding
Maandag 15-12-2025 om 11:07
Kleefkruid, Puttershoek

112 melding
Maandag 15-12-2025 om 10:58
Haagwinde, 3297WJ Puttershoek

112 melding
Maandag 15-12-2025 om 08:02
Dauwbraam, 3297WL Puttershoek

112 melding
Zondag 14-12-2025 om 20:13
Dotter, 3297WR Puttershoek

112 melding
Zondag 14-12-2025 om 20:13
Dotter, 3297WR Puttershoek

112 melding
Zondag 14-12-2025 om 17:02
Penningkruid, 3297WG Puttershoek

112 melding
Zondag 14-12-2025 om 12:31
Kleefkruid, Puttershoek

Direct een e-mail ontvangen bij nieuwe meldingen in deze regio?

Meld je dan GRATIS aan voor de Oozo Alert service voor Plan De Grienden

Instellen

Meer nieuws in Plan De Grienden

Weten hoe eenvoudig het is om af te vallen? Zonder pillen en smeersels en zonder je in het zweet te werken!
Kijk op eenvoudig-afvallen.nl

© 2012 - 2025 OOZO.nl - info@oozo.nl - Gegevens verwijderen? | Disclaimer | Privacy statement