Woning Barbarakruid 20 Puttershoek

Barbarakruid 20, 3297WP Puttershoek

Ontvang updates voor Plan De Grienden

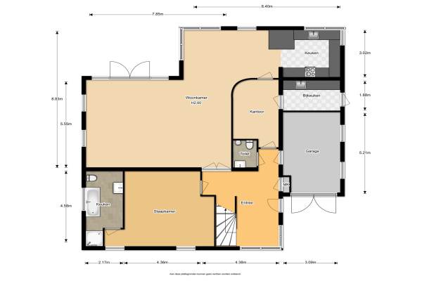
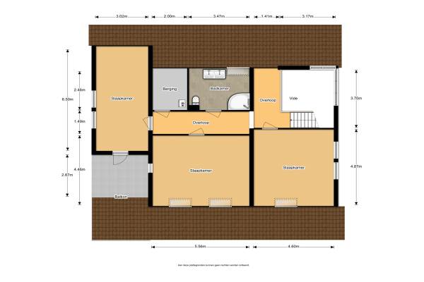
Het adres van deze woning uit 2004 is Barbarakruid 20 te Puttershoek. Het pand heeft een oppervlakte van 237m² en een perceeloppervlakte van 600m² en heeft 6 kamers kamers waarvan 4 slaapkamers. De geschatte waarde van deze woning is € 625.000.

Bekijk alle woningen in Plan De Grienden

Gegevens van Herenhuis, vrijstaande woning

Bouwjaar
2004
Geschatte waarde
€ 625.000
Oppervlakte
237 m2
Inhoud
880 m3
Aantal kamers
6 kamers
Slaapkamers
4
Badkamers
2 badkamers en 1 apart toilet
Soort bouw
Bestaande bouw
Eigendomssituatie
Volle eigendom
Ligging
Aan water, in woonwijk en vrij uitzicht
Tuin
Tuin rondom

Voorzieningen in de buurt

Binnenkijken bij Barbarakruid 20 te Puttershoek

Meer meldingen in deze omgeving

Nieuw bedrijf
Februari 2026
Gele lis 16, 3297WC Puttershoek

112 melding
Maandag 23-2-2026 om 11:39
Barbarakruid, 3297WP Puttershoek

112 melding
Maandag 23-2-2026 om 11:03
Haagwinde, 3297WJ Puttershoek

112 melding
Maandag 23-2-2026 om 10:43
Penningkruid, 3297WH Puttershoek

112 melding
Zondag 22-2-2026 om 12:02
Barbarakruid, 3297WP Puttershoek

112 melding
Zondag 22-2-2026 om 11:47
Penningkruid, 3297WG Puttershoek

112 melding
Zaterdag 21-2-2026 om 19:30
Haagwinde, 3297WJ Puttershoek

112 melding
Donderdag 19-2-2026 om 07:40
Penningkruid, 3297WE Puttershoek

Direct een e-mail ontvangen bij nieuwe meldingen in deze regio?

Meld je dan GRATIS aan voor de Oozo Alert service voor Plan De Grienden

Instellen

Meer nieuws in Plan De Grienden

Weten hoe eenvoudig het is om af te vallen? Zonder pillen en smeersels en zonder je in het zweet te werken!
Kijk op eenvoudig-afvallen.nl

© 2012 - 2026 OOZO.nl - info@oozo.nl - Gegevens verwijderen? | Disclaimer | Privacy statement