Woning Crocuserf 39 's-Gravendeel

Crocuserf 39, 3295SC 's-Gravendeel

Ontvang updates voor Nieuw Bonaventura

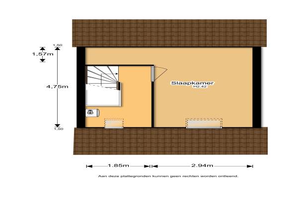
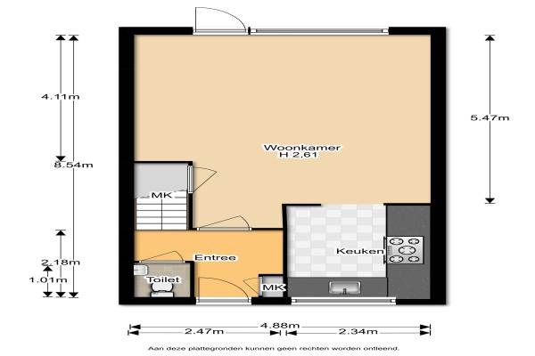
Het adres van deze woning uit 1982 is Crocuserf 39 te 's-Gravendeel. Het pand heeft een oppervlakte van 101m² en een perceeloppervlakte van 161m² en heeft 5 kamers kamers waarvan 4 slaapkamers. De geschatte waarde van deze woning is € 205.000.

Bekijk alle woningen in Nieuw Bonaventura

Gegevens van Eengezinswoning, tussenwoning

Bouwjaar
1982
Geschatte waarde
€ 205.000
Oppervlakte
101 m2
Inhoud
320 m3
Aantal kamers
5 kamers
Slaapkamers
4
Badkamers
1 badkamer en 1 apart toilet
Soort bouw
Bestaande bouw
Eigendomssituatie
Volle eigendom
Ligging
In woonwijk
Tuin
Achtertuin en voortuin
Achtertuin
87 m² (17m diep en 5,1m breed)

Voorzieningen in de buurt

Binnenkijken bij Crocuserf 39 te 's-Gravendeel

Meer meldingen in deze omgeving

112 melding
Vrijdag 24-4-2026 om 15:00
Hendrik Hamerstraat, 3295CG 's-Gravendeel

112 melding
Donderdag 23-4-2026 om 16:41
Lindehof, 3295WG 's-Gravendeel

112 melding
Donderdag 23-4-2026 om 14:52
Hyacinterf, 3295SJ 's-Gravendeel

112 melding
Dinsdag 21-4-2026 om 14:55
Hekelstraat, 3295TG 's-Gravendeel

112 melding
Maandag 20-4-2026 om 15:00
Batiststraat, 3295VA 's-Gravendeel

112 melding
Maandag 20-4-2026 om 13:04
Hendrik Hamerstraat, 3295CH 's-Gravendeel

112 melding
Zondag 19-4-2026 om 19:57
Schelfstraat, 3295TK 's-Gravendeel

112 melding
Zaterdag 18-4-2026 om 17:11
Batiststraat, 3295VA 's-Gravendeel

Direct een e-mail ontvangen bij nieuwe meldingen in deze regio?

Meld je dan GRATIS aan voor de Oozo Alert service voor Nieuw Bonaventura

Instellen

Meer nieuws in Nieuw Bonaventura

Weten hoe eenvoudig het is om af te vallen? Zonder pillen en smeersels en zonder je in het zweet te werken!
Kijk op eenvoudig-afvallen.nl

© 2012 - 2026 OOZO.nl - info@oozo.nl - Gegevens verwijderen? | Disclaimer | Privacy statement