Woning Beukenlaan 7 Bennebroek

Beukenlaan 7, 2121TL Bennebroek

Ontvang updates voor Leidsevaart- Bloemhof

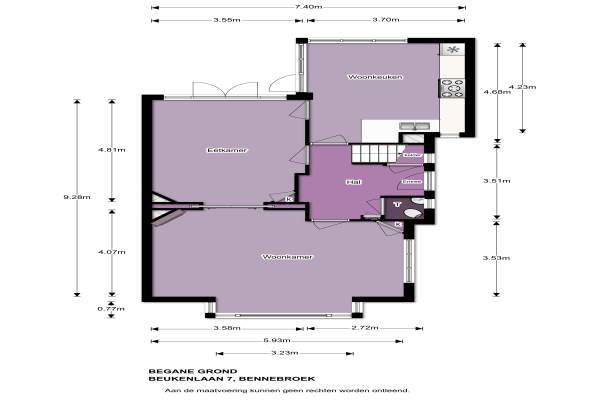
Het adres van deze woning uit 1935 is Beukenlaan 7 te Bennebroek. Het pand heeft een oppervlakte van 158m² en een perceeloppervlakte van 236m² en heeft 6 kamers kamers waarvan 5 slaapkamers. De geschatte waarde van deze woning is € 675.000.

Bekijk alle woningen in Leidsevaart- Bloemhof

Gegevens van Eengezinswoning, 2-onder-1-kapwoning

Bouwjaar
1935
Geschatte waarde
€ 675.000
Oppervlakte
158 m2
Inhoud
555 m3
Aantal kamers
6 kamers
Slaapkamers
5
Badkamers
1 badkamer en 2 aparte toiletten
Soort bouw
Bestaande bouw
Eigendomssituatie
Volle eigendom
Ligging
Aan water, aan rustige weg en in bosrijke omgeving
Tuin
Achtertuin, voortuin en zijtuin
Achtertuin
56 m² (10m diep en 5,6m breed)

Voorzieningen in de buurt

Boodschappen0,3 km
Grote supermarkt0,2 km
Cafetaria0,2 km
Restaurant0,4 km
Huisarts0,2 km
Ziekenhuis5,2 km
Kinderdagverblijf0,6 km
BSO0,6 km
Alle voorzieningen in Leidsevaart- Bloemhof

Binnenkijken bij Beukenlaan 7 te Bennebroek

Meer meldingen in deze omgeving

Binnenkijken bij
Zaterdag 29-11-2025
Zwarteweg 11A, 2121BA Bennebroek

112 melding
Dinsdag 25-11-2025 om 09:32
Zwarteweg, Bennebroek

Binnenkijken bij
Dinsdag 25-11-2025
Kastanjelaan 3, 2121TN Bennebroek

112 melding
Vrijdag 21-11-2025 om 14:25
Zwarteweg, Bennebroek

Binnenkijken bij
Vrijdag 21-11-2025
Hondsdraflaan 9, 2121RA Bennebroek

112 melding
Donderdag 20-11-2025 om 01:20
Narcissenlaan, Bennebroek

Binnenkijken bij
Dinsdag 11-11-2025
Hondsdraflaan 27, 2121RA Bennebroek

Binnenkijken bij
Dinsdag 11-11-2025
Zwarteweg 60, 2121BD Bennebroek

Direct een e-mail ontvangen bij nieuwe meldingen in deze regio?

Meld je dan GRATIS aan voor de Oozo Alert service voor Leidsevaart- Bloemhof

Instellen

Meer nieuws in Leidsevaart- Bloemhof

Weten hoe eenvoudig het is om af te vallen? Zonder pillen en smeersels en zonder je in het zweet te werken!
Kijk op eenvoudig-afvallen.nl

© 2012 - 2025 OOZO.nl - info@oozo.nl - Gegevens verwijderen? | Disclaimer | Privacy statement