Woning Hyacinthenlaan 44 Bennebroek

Hyacinthenlaan 44, 2121TD Bennebroek

Ontvang updates voor Leidsevaart- Bloemhof

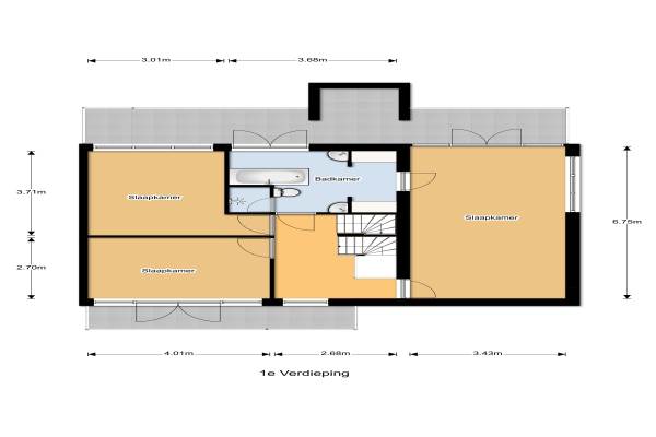
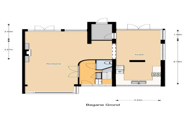
Het adres van deze woning uit 1960 is Hyacinthenlaan 44 te Bennebroek. Het pand heeft een oppervlakte van 190m² en een perceeloppervlakte van 469m² en heeft 5 kamers kamers waarvan 4 slaapkamers. De geschatte waarde van deze woning is € 719.000.

Bekijk alle woningen in Leidsevaart- Bloemhof

Gegevens van Eengezinswoning, hoekwoning

Bouwjaar
1960
Geschatte waarde
€ 719.000
Oppervlakte
190 m2
Inhoud
590 m3
Aantal kamers
5 kamers
Slaapkamers
4
Badkamers
1 badkamer en 1 apart toilet
Soort bouw
Bestaande bouw
Eigendomssituatie
Volle eigendom
Ligging
Aan rustige weg, in woonwijk, vrij uitzicht, open ligging en in bosrijke omgeving
Tuin
Achtertuin, voortuin en zijtuin
Achtertuin
182 m² (13m diep en 14m breed)

Voorzieningen in de buurt

Boodschappen0,3 km
Grote supermarkt0,2 km
Cafetaria0,2 km
Restaurant0,4 km
Huisarts0,2 km
Ziekenhuis5,2 km
Kinderdagverblijf0,6 km
BSO0,6 km
Alle voorzieningen in Leidsevaart- Bloemhof

Binnenkijken bij Hyacinthenlaan 44 te Bennebroek

Meer meldingen in deze omgeving

112 melding
Zaterdag 1-11-2025 om 07:33
Hyacinthenlaan, Bennebroek

112 melding
Zaterdag 1-11-2025 om 07:33
Hyacinthenlaan, Bennebroek

112 melding
Woensdag 29-10-2025 om 19:01
Zwarteweg, Bennebroek

112 melding
Woensdag 29-10-2025 om 18:41
Narcissenlaan, Bennebroek

112 melding
Woensdag 29-10-2025 om 18:33
Narcissenlaan, Bennebroek

Binnenkijken bij
Woensdag 29-10-2025
Tulpenlaan 22, 2121SE Bennebroek

112 melding
Maandag 20-10-2025 om 16:01
Zwarteweg, Bennebroek

Binnenkijken bij
Zondag 19-10-2025
Kastanjelaan 3, 2121TN Bennebroek

Direct een e-mail ontvangen bij nieuwe meldingen in deze regio?

Meld je dan GRATIS aan voor de Oozo Alert service voor Leidsevaart- Bloemhof

Instellen

Meer nieuws in Leidsevaart- Bloemhof

Weten hoe eenvoudig het is om af te vallen? Zonder pillen en smeersels en zonder je in het zweet te werken!
Kijk op eenvoudig-afvallen.nl

© 2012 - 2025 OOZO.nl - info@oozo.nl - Gegevens verwijderen? | Disclaimer | Privacy statement