Woning Grotestraat 138140 Borne

Grotestraat 138-140, 7622GP Borne

Ontvang updates voor Borne Centrum

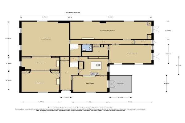
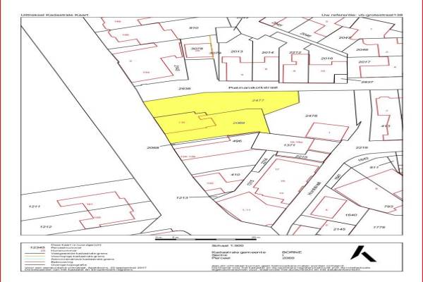
Het adres van deze woning uit 1876 is Grotestraat 138140 te Borne. Het pand heeft een oppervlakte van 350m² en een perceeloppervlakte van 704m² en heeft 13 kamers kamers waarvan 7 slaapkamers. De geschatte waarde van deze woning is € 990.000.

Bekijk alle woningen in Borne Centrum

Gegevens van Villa, vrijstaande woning

Bouwjaar
1876
Geschatte waarde
€ 990.000
Oppervlakte
350 m2
Inhoud
1400 m3
Aantal kamers
13 kamers
Slaapkamers
7
Badkamers
2 badkamers en 1 apart toilet
Soort bouw
Bestaande bouw
Eigendomssituatie
Volle eigendom
Ligging
In centrum
Tuin
Achtertuin en zijtuin
Achtertuin
500 m² (25m diep en 20m breed)

Voorzieningen in de buurt

Boodschappen0,3 km
Grote supermarkt0,3 km
Cafetaria0,2 km
Restaurant0,3 km
Huisarts0,4 km
Ziekenhuis5,7 km
Kinderdagverblijf0,9 km
BSO0,8 km
Alle voorzieningen in Borne Centrum

Binnenkijken bij Grotestraat 138140 te Borne

Meer meldingen in deze omgeving

Nieuw bedrijf
December 2025
Fleminghof 5, 7622MB Borne

112 melding
Zondag 21-12-2025 om 11:03
Nieuwe Kerkstraat, Borne

Faillissement
Vrijdag 12-12-2025
Molenstraat 122, 7622NG Borne

112 melding
Donderdag 11-12-2025 om 13:03
Rheineplein, 7622DG Borne

Binnenkijken bij
Donderdag 4-12-2025
RWH Hofstede Crullstraat 67, 7622DP Borne

Nieuw bedrijf
December 2025
Ziekenhuisstraat 1a, 7622GZ Borne

Binnenkijken bij
Woensdag 3-12-2025
Azelosestraat 13B, 7622NC Borne

112 melding
Dinsdag 2-12-2025 om 12:51
De Schoener, Borne

Direct een e-mail ontvangen bij nieuwe meldingen in deze regio?

Meld je dan GRATIS aan voor de Oozo Alert service voor Borne Centrum

Instellen

Meer nieuws in Borne Centrum

Weten hoe eenvoudig het is om af te vallen? Zonder pillen en smeersels en zonder je in het zweet te werken!
Kijk op eenvoudig-afvallen.nl

© 2012 - 2025 OOZO.nl - info@oozo.nl - Gegevens verwijderen? | Disclaimer | Privacy statement