Woning Hortensiastraat 19 's-Gravenpolder

Hortensiastraat 19, 4431EA 's-Gravenpolder

Ontvang updates voor 's-Gravenpolder (Kern)

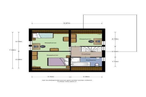
Het adres van deze woning uit 1988 is Hortensiastraat 19 te 's-Gravenpolder. Het pand heeft een oppervlakte van 122m² en een perceeloppervlakte van 350m² en heeft 6 kamers kamers waarvan 4 slaapkamers. De geschatte waarde van deze woning is € 249.000.

Bekijk alle woningen in 's-Gravenpolder (Kern)

Gegevens van Eengezinswoning, vrijstaande woning

Bouwjaar
1988
Geschatte waarde
€ 249.000
Oppervlakte
122 m2
Inhoud
495 m3
Aantal kamers
6 kamers
Slaapkamers
4
Badkamers
1 badkamer en 1 apart toilet
Soort bouw
Bestaande bouw
Eigendomssituatie
Volle eigendom
Ligging
Aan rustige weg, beschutte ligging en in woonwijk
Tuin
Voortuin en achtertuin
Achtertuin
182 m² (14m diep en 13m breed)

Voorzieningen in de buurt

Boodschappen0,4 km
Grote supermarkt0,6 km
Cafetaria4,9 km
Restaurant0,7 km
Huisarts0,8 km
Ziekenhuis5,2 km
Kinderdagverblijf0,6 km
BSO0,6 km
Alle voorzieningen in 's-Gravenpolder (Kern)

Binnenkijken bij Hortensiastraat 19 te 's-Gravenpolder

Meer meldingen in deze omgeving

112 melding
Donderdag 13-11-2025 om 14:04
Populierestraat, 's-Gravenpolder

Binnenkijken bij
Dinsdag 11-11-2025
Ambachtsstraat 49, 4431BD 's-Gravenpolder

Binnenkijken bij
Dinsdag 11-11-2025
Kamperfoeliestraat 36, 4431EC 's-Gravenpolder

Nieuw bedrijf
November 2025
Wilgestraat 7, 4431CJ 's-Gravenpolder

Nieuw bedrijf
November 2025
Burgemeester Prümersstraat 15, 4431BZ 's-Gravenpolder

Nieuw bedrijf
November 2025
Hazelaarstraat 7, 4431DT 's-Gravenpolder

Nieuw bedrijf
November 2025
Wilgestraat 28, 4431CH 's-Gravenpolder

Nieuw bedrijf
November 2025
Wilgestraat 25, 4431CJ 's-Gravenpolder

Direct een e-mail ontvangen bij nieuwe meldingen in deze regio?

Meld je dan GRATIS aan voor de Oozo Alert service voor 's-Gravenpolder (Kern)

Instellen

Meer nieuws in 's-Gravenpolder (Kern)

Weten hoe eenvoudig het is om af te vallen? Zonder pillen en smeersels en zonder je in het zweet te werken!
Kijk op eenvoudig-afvallen.nl

© 2012 - 2025 OOZO.nl - info@oozo.nl - Gegevens verwijderen? | Disclaimer | Privacy statement