Woning Groeningsestraat 34 Groeningen

Groeningsestraat 34, 5826AC Groeningen

Ontvang updates voor Groeningen Centrum

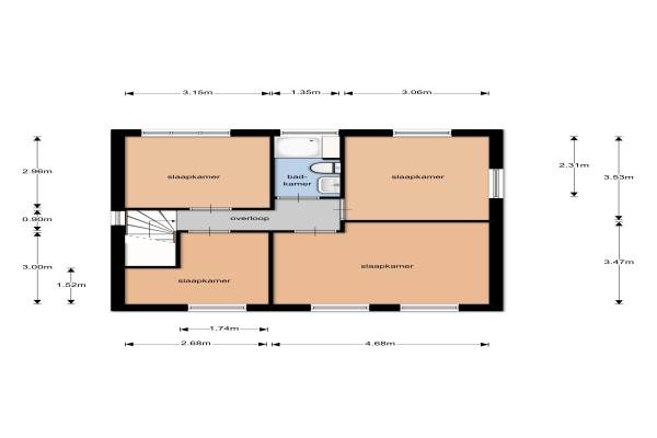
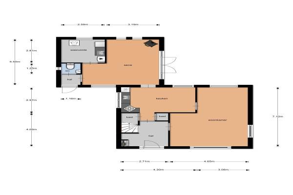
Het adres van deze woning uit 1969 is Groeningsestraat 34 te Groeningen. Het pand heeft een oppervlakte van 140m² en een perceeloppervlakte van 6098m² en heeft 6 kamers kamers waarvan 4 slaapkamers. De geschatte waarde van deze woning is € 379.000.

Bekijk alle woningen in Groeningen Centrum

Gegevens van Eengezinswoning, vrijstaande woning

Bouwjaar
1969
Geschatte waarde
€ 379.000
Oppervlakte
140 m2
Inhoud
535 m3
Aantal kamers
6 kamers
Slaapkamers
4
Badkamers
1 apart toilet
Soort bouw
Bestaande bouw
Eigendomssituatie
Volle eigendom
Ligging
Aan drukke weg en vrij uitzicht
Tuin
Tuin rondom

Voorzieningen in de buurt

Boodschappen1,9 km
Grote supermarkt1,9 km
Cafetaria1,3 km
Restaurant0,3 km
Huisarts2,3 km
Ziekenhuis8,9 km
Kinderdagverblijf2,0 km
BSO1,9 km
Alle voorzieningen in Groeningen Centrum

Binnenkijken bij Groeningsestraat 34 te Groeningen

Meer meldingen in deze omgeving

Binnenkijken bij
Woensdag 29-10-2025
Voortweg 37, 5821EJ Vierlingsbeek

Nieuw bedrijf
Oktober 2025
Molenweg 10, 5826BZ Groeningen

Binnenkijken bij
Vrijdag 19-9-2025
Gildenhoed 7, 5826AP Groeningen

Nieuw bedrijf
Juli 2025
Groeningsestraat 29b, 5826AB Groeningen

Nieuw bedrijf
Juli 2025
Voortweg 6, 5826AH Groeningen

Nieuw bedrijf
Juni 2025
Groeningsestraat 31c, 5826AB GROENINGEN

Nieuw bedrijf
Juni 2025
Groeningsestraat 46a, 5826AD GROENINGEN

112 melding
Donderdag 15-5-2025 om 19:30
Maasstraat, 5826AM Groeningen

Direct een e-mail ontvangen bij nieuwe meldingen in deze regio?

Meld je dan GRATIS aan voor de Oozo Alert service voor Groeningen Centrum

Instellen

Meer nieuws in Groeningen Centrum

Weten hoe eenvoudig het is om af te vallen? Zonder pillen en smeersels en zonder je in het zweet te werken!
Kijk op eenvoudig-afvallen.nl

© 2012 - 2025 OOZO.nl - info@oozo.nl - Gegevens verwijderen? | Disclaimer | Privacy statement