Woning Hezelaarsestraat 11 Liempde

Hezelaarsestraat 11, 5298NH Liempde

Ontvang updates voor Hezelaar

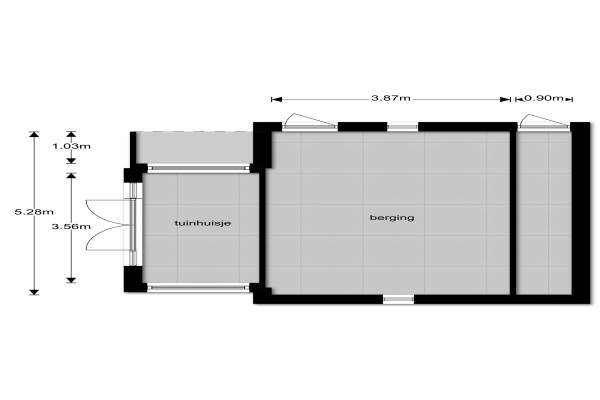
Het adres van deze woning uit 1981 is Hezelaarsestraat 11 te Liempde. Het pand heeft een oppervlakte van 178m² en een perceeloppervlakte van 6835m² en heeft 7 kamers kamers waarvan 5 slaapkamers. De geschatte waarde van deze woning is € 750.000.

Bekijk alle woningen in Hezelaar

Gegevens van Woonboerderij, halfvrijstaande woning

Bouwjaar
1981
Geschatte waarde
€ 750.000
Oppervlakte
178 m2
Inhoud
1226 m3
Aantal kamers
7 kamers
Slaapkamers
5
Badkamers
2 badkamers en 2 aparte toiletten
Soort bouw
Bestaande bouw
Eigendomssituatie
Volle eigendom
Ligging
Aan rustige weg, vrij uitzicht, buiten bebouwde kom en landelijk gelegen
Tuin
Tuin rondom

Voorzieningen in de buurt

Boodschappen1,2 km
Grote supermarkt1,6 km
Cafetaria1,2 km
Restaurant1,3 km
Huisarts1,5 km
Ziekenhuis6,3 km
Kinderdagverblijf1,3 km
BSO1,3 km
Alle voorzieningen in Hezelaar

Binnenkijken bij Hezelaarsestraat 11 te Liempde

Meer meldingen in deze omgeving

112 melding
Donderdag 23-10-2025 om 14:47
Hezelaarsestraat, 5298 Liempde

112 melding
Dinsdag 14-10-2025 om 12:21
Hezelaarsestraat, 5298NJ Liempde

112 melding
Maandag 15-9-2025 om 09:44
Hezelaarsestraat, 5298NJ Liempde

112 melding
Vrijdag 22-8-2025 om 19:09
Hezelaarsestraat, Liempde

112 melding
Vrijdag 22-8-2025 om 19:08
Hezelaarsestraat, Liempde

112 melding
Vrijdag 22-8-2025 om 19:08
Hezelaarsestraat, Liempde

112 melding
Dinsdag 29-7-2025 om 10:53
Meulekensweg, 5298NL Liempde

112 melding
Vrijdag 18-7-2025 om 12:43
Hezelaarsestraat, 5298 Liempde

Direct een e-mail ontvangen bij nieuwe meldingen in deze regio?

Meld je dan GRATIS aan voor de Oozo Alert service voor Hezelaar

Instellen

Meer nieuws in Hezelaar

Weten hoe eenvoudig het is om af te vallen? Zonder pillen en smeersels en zonder je in het zweet te werken!
Kijk op eenvoudig-afvallen.nl

© 2012 - 2026 OOZO.nl - info@oozo.nl - Gegevens verwijderen? | Disclaimer | Privacy statement