Woning Kloosterstraat 43 Bavel

Kloosterstraat 43, 4854CL Bavel

Ontvang updates voor Bavel

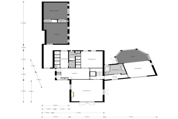
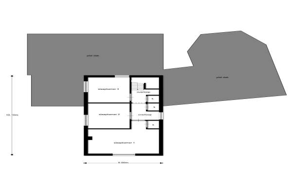
Het adres van deze woning uit 1950 is Kloosterstraat 43 te Bavel. Het pand heeft een oppervlakte van 168m² en een perceeloppervlakte van 850m² en heeft 6 kamers kamers waarvan 4 slaapkamers. De geschatte waarde van deze woning is € 875.000.

Bekijk alle woningen in Bavel

Gegevens van Eengezinswoning, vrijstaande woning

Bouwjaar
1950
Geschatte waarde
€ 875.000
Oppervlakte
168 m2
Inhoud
600 m3
Aantal kamers
6 kamers
Slaapkamers
4
Badkamers
2 badkamers en 1 apart toilet
Soort bouw
Bestaande bouw
Eigendomssituatie
Volle eigendom
Ligging
In woonwijk
Tuin
Achtertuin en voortuin
Achtertuin
324 m² (18m diep en 18m breed)

Voorzieningen in de buurt

Boodschappen0,6 km
Grote supermarkt0,7 km
Cafetaria0,6 km
Restaurant0,5 km
Huisarts0,5 km
Ziekenhuis3,5 km
Kinderdagverblijf0,5 km
BSO0,5 km
Alle voorzieningen in Bavel

Binnenkijken bij Kloosterstraat 43 te Bavel

Meer meldingen in deze omgeving

Nieuw bedrijf
December 2025
Lange Bunder 69, 4854MB Bavel

Faillissement
Maandag 1-12-2025
Deken Dr. Dirckxweg 3A, 4854AA Bavel

Faillissement
Maandag 1-12-2025
Deken Dr.Dirckxweg 3A, 4854AA BAVEL

Binnenkijken bij
Zaterdag 29-11-2025
Kloosterstraat 18, 4854CM Bavel (Gem. Breda)

Nieuw bedrijf
November 2025
Geestland 20, 4854BG Bavel

112 melding
Woensdag 26-11-2025 om 12:35
Boerenerf, 4854RS Bavel

112 melding
Woensdag 26-11-2025 om 12:32
Boerenerf, 4854RS Bavel

Binnenkijken bij
Dinsdag 25-11-2025
Nieuwland 8, 4854BJ Bavel (Gem. Breda)

Direct een e-mail ontvangen bij nieuwe meldingen in deze regio?

Meld je dan GRATIS aan voor de Oozo Alert service voor Bavel

Instellen

Meer nieuws in Bavel

Weten hoe eenvoudig het is om af te vallen? Zonder pillen en smeersels en zonder je in het zweet te werken!
Kijk op eenvoudig-afvallen.nl

© 2012 - 2025 OOZO.nl - info@oozo.nl - Gegevens verwijderen? | Disclaimer | Privacy statement