Woning Waterweegbree 22 Breda

Waterweegbree 22, 4823NC Breda

Ontvang updates voor Kroeten

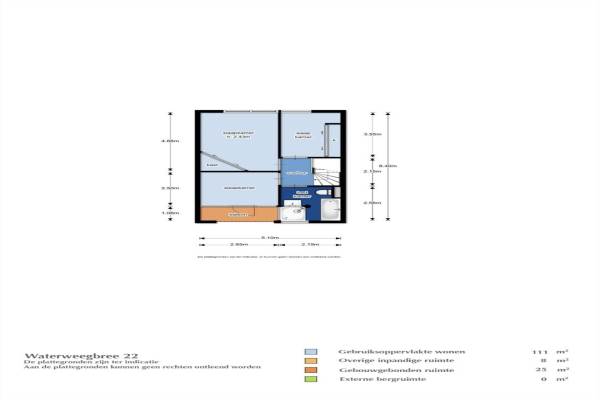
Het adres van deze woning uit 2001 is Waterweegbree 22 te Breda. Het pand heeft een oppervlakte van 111m² en een perceeloppervlakte van 143m² en heeft 6 kamers kamers waarvan 3 slaapkamers. De geschatte waarde van deze woning is € 250.000.

Bekijk alle woningen in Kroeten

Gegevens van Eengezinswoning, tussenwoning

Bouwjaar
2001
Geschatte waarde
€ 250.000
Oppervlakte
111 m2
Inhoud
400 m3
Aantal kamers
6 kamers
Slaapkamers
3
Soort bouw
Bestaande bouw
Eigendomssituatie
Volle eigendom
Ligging
In woonwijk en in bosrijke omgeving
Tuin
Patio/atrium en voortuin

Voorzieningen in de buurt

Boodschappen1,3 km
Grote supermarkt1,4 km
Cafetaria1,4 km
Restaurant1,3 km
Huisarts0,5 km
Ziekenhuis7,3 km
Kinderdagverblijf0,3 km
BSO0,3 km
Alle voorzieningen in Kroeten

Binnenkijken bij Waterweegbree 22 te Breda

Meer meldingen in deze omgeving

Nieuw bedrijf
December 2025
Lisdodde 69, 4823MB Breda

Binnenkijken bij
Vrijdag 5-12-2025
Sterrenkroos 58, 4823ME Breda

Binnenkijken bij
Vrijdag 28-11-2025
Priemkruid 10, 4823NA Breda

Nieuw bedrijf
November 2025
Waterviolier 19, 4823MA Breda

112 melding
Dinsdag 25-11-2025 om 17:51
Fonteinkruid, 4823MZ Breda

Binnenkijken bij
Zondag 16-11-2025
Priemkruid 16, 4823NA Breda

Binnenkijken bij
Vrijdag 14-11-2025
Waterviolier 152, 4823MA Breda

Nieuw bedrijf
November 2025
Sterrenkroos 136, 4823ME Breda

Direct een e-mail ontvangen bij nieuwe meldingen in deze regio?

Meld je dan GRATIS aan voor de Oozo Alert service voor Kroeten

Instellen

Meer nieuws in Kroeten

Weten hoe eenvoudig het is om af te vallen? Zonder pillen en smeersels en zonder je in het zweet te werken!
Kijk op eenvoudig-afvallen.nl

© 2012 - 2025 OOZO.nl - info@oozo.nl - Gegevens verwijderen? | Disclaimer | Privacy statement