Woning Baronielaan 185 Breda

Baronielaan 185, 4818PG Breda

Ontvang updates voor Zandberg

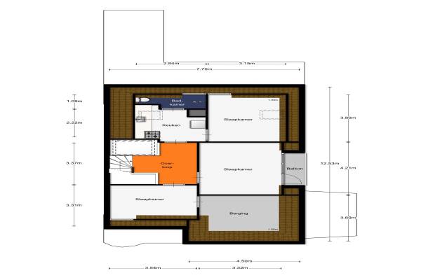
Het adres van deze woning uit 1928 is Baronielaan 185 te Breda. Het pand heeft een oppervlakte van 266m² en een perceeloppervlakte van 715m² en heeft 9 kamers kamers waarvan 7 slaapkamers. De geschatte waarde van deze woning is € 785.000.

Bekijk alle woningen in Zandberg

Gegevens van Herenhuis, halfvrijstaande woning

Bouwjaar
1928
Geschatte waarde
€ 785.000
Oppervlakte
266 m2
Inhoud
1085 m3
Aantal kamers
9 kamers
Slaapkamers
7
Badkamers
2 badkamers en 2 aparte toiletten
Soort bouw
Bestaande bouw
Eigendomssituatie
Volle eigendom
Ligging
In centrum en in woonwijk
Tuin
Achtertuin, voortuin en zijtuin
Achtertuin
247 m² (19m diep en 13m breed)

Voorzieningen in de buurt

Boodschappen0,3 km
Grote supermarkt0,4 km
Cafetaria0,2 km
Restaurant0,2 km
Huisarts0,7 km
Ziekenhuis1,8 km
Kinderdagverblijf0,4 km
BSO0,4 km
Alle voorzieningen in Zandberg

Binnenkijken bij Baronielaan 185 te Breda

Meer meldingen in deze omgeving

Binnenkijken bij
Dinsdag 11-11-2025
Zandbergdwarsstraat 11A, 4818NC Breda

Binnenkijken bij
Dinsdag 11-11-2025
Franklin Rooseveltlaan 47, 4818KA Breda

Binnenkijken bij
Dinsdag 11-11-2025
Mimosastraat 22, 4818HR Breda

Nieuw bedrijf
November 2025
Ginnekenweg 95B, 4818JC Breda

Nieuw bedrijf
November 2025
Ginnekenweg 95B, 4818JC Breda

Nieuw bedrijf
November 2025
Helenastraat 4, 4818SP Breda

Nieuw bedrijf
November 2025
Ginnekenweg 145, 4818JD Breda

Nieuw bedrijf
November 2025
Koninginnestraat 22, 4818HC Breda

Direct een e-mail ontvangen bij nieuwe meldingen in deze regio?

Meld je dan GRATIS aan voor de Oozo Alert service voor Zandberg

Instellen

Meer nieuws in Zandberg

Weten hoe eenvoudig het is om af te vallen? Zonder pillen en smeersels en zonder je in het zweet te werken!
Kijk op eenvoudig-afvallen.nl

© 2012 - 2025 OOZO.nl - info@oozo.nl - Gegevens verwijderen? | Disclaimer | Privacy statement