Woning Abeelstraat 33 Breda

Abeelstraat 33, 4814HA Breda

Ontvang updates voor Tuinzigt

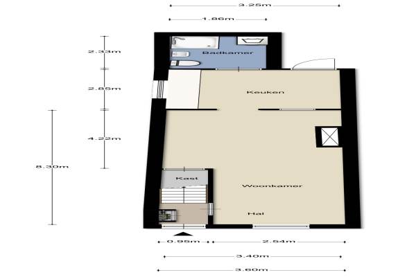
Het adres van deze woning uit 1928 is Abeelstraat 33 te Breda. Het pand heeft een oppervlakte van 71m² en een perceeloppervlakte van 81m² en heeft 3 kamers kamers waarvan 2 slaapkamers. De geschatte waarde van deze woning is € 165.000.

Bekijk alle woningen in Tuinzigt

Gegevens van Eengezinswoning, tussenwoning

Bouwjaar
1928
Geschatte waarde
€ 165.000
Oppervlakte
71 m2
Inhoud
255 m3
Aantal kamers
3 kamers
Slaapkamers
2
Badkamers
1 badkamer
Soort bouw
Bestaande bouw
Eigendomssituatie
Volle eigendom
Ligging
Aan rustige weg en in woonwijk
Tuin
Achtertuin
Achtertuin
35 m² (10m diep en 3,5m breed)

Voorzieningen in de buurt

Boodschappen0,4 km
Grote supermarkt0,4 km
Cafetaria0,3 km
Restaurant0,4 km
Huisarts0,6 km
Ziekenhuis1,9 km
Kinderdagverblijf0,4 km
BSO0,6 km
Alle voorzieningen in Tuinzigt

Binnenkijken bij Abeelstraat 33 te Breda

Meer meldingen in deze omgeving

Binnenkijken bij
Zaterdag 17-1-2026
Tramsingel 95A5, 4814AE Breda

Binnenkijken bij
Vrijdag 16-1-2026
Kolfbaanstraat 5, 4814CJ Breda

Faillissement
Donderdag 15-1-2026
Reduitlaan 45, 4814DC Breda

Binnenkijken bij
Dinsdag 13-1-2026
Mgr. Horsthuisstraat 27, 4813XM Breda

112 melding
Maandag 12-1-2026 om 19:03
Tramsingel, Breda

Binnenkijken bij
Zondag 11-1-2026
Kolfbaanstraat 29, 4814CJ Breda

112 melding
Zaterdag 10-1-2026 om 20:47
Dijkplein, Breda

112 melding
Donderdag 8-1-2026 om 22:57
Tramsingel, Breda

Direct een e-mail ontvangen bij nieuwe meldingen in deze regio?

Meld je dan GRATIS aan voor de Oozo Alert service voor Tuinzigt

Instellen

Meer nieuws in Tuinzigt

Weten hoe eenvoudig het is om af te vallen? Zonder pillen en smeersels en zonder je in het zweet te werken!
Kijk op eenvoudig-afvallen.nl

© 2012 - 2026 OOZO.nl - info@oozo.nl - Gegevens verwijderen? | Disclaimer | Privacy statement