Woning Graaf Hendrik III laan 137 Breda

Graaf Hendrik III laan 137, 4819CE Breda

Ontvang updates voor Boeimeer

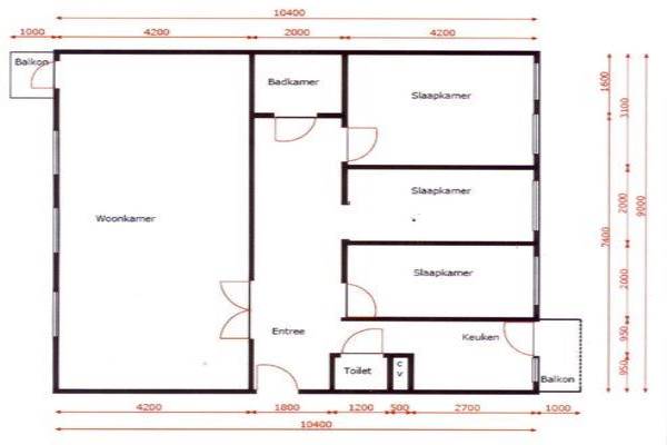
Het adres van deze woning uit 1955 is Graaf Hendrik III laan 137 te Breda. Het pand heeft een oppervlakte van 90m² en heeft 4 kamers kamers waarvan 3 slaapkamers. De geschatte waarde van deze woning is € 224.000.

Bekijk alle woningen in Boeimeer

Gegevens van Portiekflat (appartement)

Bouwjaar
1955
Geschatte waarde
€ 224.000
Oppervlakte
90 m2
Inhoud
250 m3
Aantal kamers
4 kamers
Slaapkamers
3
Badkamers
1 badkamer en 1 apart toilet
Soort bouw
Bestaande bouw
Eigendomssituatie
Volle eigendom
Ligging
Aan rustige weg en in woonwijk

Voorzieningen in de buurt

Boodschappen0,3 km
Grote supermarkt0,5 km
Cafetaria0,4 km
Restaurant0,4 km
Huisarts0,5 km
Ziekenhuis1,0 km
Kinderdagverblijf0,4 km
BSO0,3 km
Alle voorzieningen in Boeimeer

Binnenkijken bij Graaf Hendrik III laan 137 te Breda

Meer meldingen in deze omgeving

Binnenkijken bij
Zaterdag 13-12-2025
Albert Verweijstraat 7, 4819EK Breda

Binnenkijken bij
Vrijdag 12-12-2025
Irenestraat 24, 4811SC Breda

Nieuw bedrijf
December 2025
Vredenburchsingel 1, 4811SH Breda

Nieuw bedrijf
December 2025
Graaf Hendrik III plein 53B, 4819CK Breda

Nieuw bedrijf
December 2025
Witte de Withweg 16, 4819AH Breda

Nieuw bedrijf
December 2025
Witte de Withweg 16, 4819AH Breda

Binnenkijken bij
Woensdag 10-12-2025
Clausstraat 8, 4811PV Breda

Faillissement
Dinsdag 9-12-2025
Julianalaan 1, 4819AB Breda

Direct een e-mail ontvangen bij nieuwe meldingen in deze regio?

Meld je dan GRATIS aan voor de Oozo Alert service voor Boeimeer

Instellen

Meer nieuws in Boeimeer

Weten hoe eenvoudig het is om af te vallen? Zonder pillen en smeersels en zonder je in het zweet te werken!
Kijk op eenvoudig-afvallen.nl

© 2012 - 2025 OOZO.nl - info@oozo.nl - Gegevens verwijderen? | Disclaimer | Privacy statement