Woning Verhuellweg 8 Breda

Verhuellweg 8, 4819BL Breda

Ontvang updates voor Boeimeer

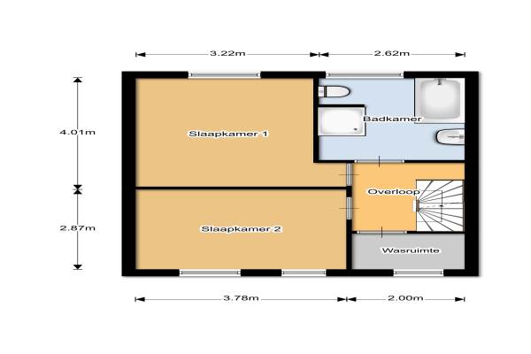
Het adres van deze woning uit 1954 is Verhuellweg 8 te Breda. Het pand heeft 5 kamers kamers waarvan 3 slaapkamers. De geschatte waarde van deze woning is € 399.000.

Bekijk alle woningen in Boeimeer

Gegevens van Eengezinswoning, tussenwoning

Bouwjaar
1954
Geschatte waarde
€ 399.000
Oppervlakte
0 m2
Inhoud
385 m3
Aantal kamers
5 kamers
Slaapkamers
3
Badkamers
1 badkamer en 1 apart toilet
Soort bouw
Bestaande bouw
Eigendomssituatie
Volle eigendom
Ligging
Aan rustige weg en in woonwijk
Tuin
Achtertuin en voortuin
Achtertuin
42 m² (7m diep en 6,05m breed)

Voorzieningen in de buurt

Boodschappen0,3 km
Grote supermarkt0,5 km
Cafetaria0,4 km
Restaurant0,4 km
Huisarts0,5 km
Ziekenhuis1,0 km
Kinderdagverblijf0,4 km
BSO0,3 km
Alle voorzieningen in Boeimeer

Binnenkijken bij Verhuellweg 8 te Breda

Meer meldingen in deze omgeving

112 melding
Vrijdag 6-3-2026 om 07:54
Vriesdongen, Breda

112 melding
Vrijdag 6-3-2026 om 07:54
Vriesdongen, Breda

Binnenkijken bij
Donderdag 5-3-2026
Jan Nieuwenhuyzenstraat 3C6, 4818RH Breda

Nieuw bedrijf
Maart 2026
Balfortstraat 17A, 4811RR Breda

Nieuw bedrijf
Maart 2026
Dr. van Campenstraat 24, 4811RJ Breda

Binnenkijken bij
Woensdag 4-3-2026
Jacob Catssingel 99, 4819HB Breda

Binnenkijken bij
Woensdag 4-3-2026
Graaf Hendrik III laan 127C, 4819CD Breda

Nieuw bedrijf
Maart 2026
Graaf Engelbertlaan 94, 4819BP Breda

Direct een e-mail ontvangen bij nieuwe meldingen in deze regio?

Meld je dan GRATIS aan voor de Oozo Alert service voor Boeimeer

Instellen

Meer nieuws in Boeimeer

Weten hoe eenvoudig het is om af te vallen? Zonder pillen en smeersels en zonder je in het zweet te werken!
Kijk op eenvoudig-afvallen.nl

© 2012 - 2026 OOZO.nl - info@oozo.nl - Gegevens verwijderen? | Disclaimer | Privacy statement