Woning Kloosterhof 4 Brunssum

Kloosterhof 4, 6441DT Brunssum

Ontvang updates voor Koutenveld

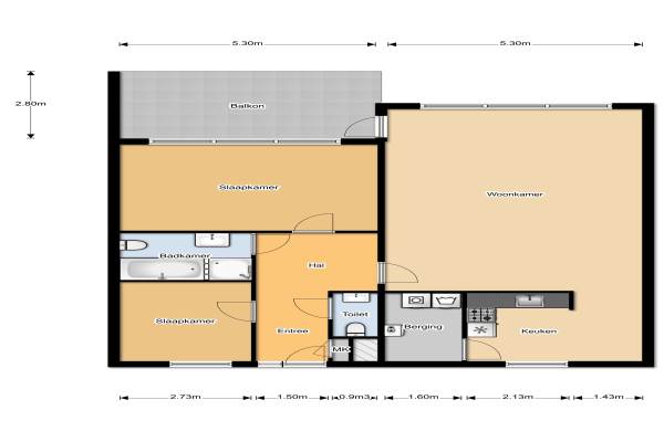
Het adres van deze woning uit 2004 is Kloosterhof 4 te Brunssum. Het pand heeft een oppervlakte van 110m² en heeft 4 kamers kamers waarvan 2 slaapkamers. De geschatte waarde van deze woning is € 275.000.

Bekijk alle woningen in Koutenveld

Gegevens van Galerijflat (appartement)

Bouwjaar
2004
Geschatte waarde
€ 275.000
Oppervlakte
110 m2
Inhoud
335 m3
Aantal kamers
4 kamers
Slaapkamers
2
Badkamers
1 badkamer en 1 apart toilet
Soort bouw
Bestaande bouw
Eigendomssituatie
Volle eigendom
Ligging
Aan rustige weg, in woonwijk en beschutte ligging

Voorzieningen in de buurt

Boodschappen0,2 km
Grote supermarkt0,4 km
Cafetaria0,4 km
Restaurant0,2 km
Huisarts0,3 km
Ziekenhuis1,2 km
Kinderdagverblijf0,7 km
BSO0,7 km
Alle voorzieningen in Koutenveld

Binnenkijken bij Kloosterhof 4 te Brunssum

Meer meldingen in deze omgeving

Binnenkijken bij
Zondag 1-2-2026
Olympiade 54, 6441DV Brunssum

Binnenkijken bij
Woensdag 10-12-2025
Kloosterhof 28, 6441DT Brunssum

Binnenkijken bij
Zondag 19-10-2025
Folkloriada 3, 6441DW Brunssum

Nieuw bedrijf
Juli 2025
St. Brigidastraat 3, 6441CR Brunssum

Binnenkijken bij
Zondag 15-6-2025
Folkloriada 29, 6441DW Brunssum

Binnenkijken bij
Maandag 12-5-2025
Olympiade 1, 6441DV Brunssum

Binnenkijken bij
Maandag 12-5-2025
Olympiade 8, 6441DV Brunssum

Nieuw bedrijf
April 2025
Kloosterstraat 17, 6441CL Brunssum

Direct een e-mail ontvangen bij nieuwe meldingen in deze regio?

Meld je dan GRATIS aan voor de Oozo Alert service voor Koutenveld

Instellen

Meer nieuws in Koutenveld

Weten hoe eenvoudig het is om af te vallen? Zonder pillen en smeersels en zonder je in het zweet te werken!
Kijk op eenvoudig-afvallen.nl

© 2012 - 2026 OOZO.nl - info@oozo.nl - Gegevens verwijderen? | Disclaimer | Privacy statement