Woning Heufstraat 42 Brunssum

Heufstraat 42, 6441TX Brunssum

Ontvang updates voor Rozengaard

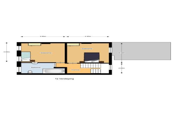
Het adres van deze woning uit 1930 is Heufstraat 42 te Brunssum. Het pand heeft een oppervlakte van 165m² en een perceeloppervlakte van 400m² en heeft 8 kamers kamers waarvan 4 slaapkamers. De geschatte waarde van deze woning is € 193.000.

Bekijk alle woningen in Rozengaard

Gegevens van Eengezinswoning, halfvrijstaande woning

Bouwjaar
1930
Geschatte waarde
€ 193.000
Oppervlakte
165 m2
Inhoud
665 m3
Aantal kamers
8 kamers
Slaapkamers
4
Soort bouw
Bestaande bouw
Eigendomssituatie
Volle eigendom
Ligging
Aan rustige weg, in centrum, in woonwijk en beschutte ligging
Tuin
Achtertuin
Achtertuin
269 m² (24m diep en 11,2m breed)

Voorzieningen in de buurt

Boodschappen0,4 km
Grote supermarkt0,8 km
Cafetaria0,2 km
Restaurant0,7 km
Huisarts0,5 km
Ziekenhuis1,6 km
Kinderdagverblijf1,0 km
BSO1,0 km
Alle voorzieningen in Rozengaard

Binnenkijken bij Heufstraat 42 te Brunssum

Meer meldingen in deze omgeving

Binnenkijken bij
Zaterdag 13-12-2025
Dorpstraat 169A, 6441CE Brunssum

Binnenkijken bij
Dinsdag 25-11-2025
Jonker Cluttstraat 33, 6441TC Brunssum

Binnenkijken bij
Dinsdag 11-11-2025
Merkelbeekerstraat 2, 6441KL Brunssum

Binnenkijken bij
Dinsdag 11-11-2025
Dorpstraat 141, 6441CD Brunssum

Nieuw bedrijf
Oktober 2025
Dorpstraat 155, 6441CE Brunssum

112 melding
Vrijdag 17-10-2025 om 05:17
Kasteelstraat, Brunssum

Binnenkijken bij
Donderdag 2-10-2025
Dorpstraat 111, 6441CD Brunssum

Binnenkijken bij
Zaterdag 27-9-2025
Veldstraat 2, 6441ST Brunssum

Direct een e-mail ontvangen bij nieuwe meldingen in deze regio?

Meld je dan GRATIS aan voor de Oozo Alert service voor Rozengaard

Instellen

Meer nieuws in Rozengaard

Weten hoe eenvoudig het is om af te vallen? Zonder pillen en smeersels en zonder je in het zweet te werken!
Kijk op eenvoudig-afvallen.nl

© 2012 - 2025 OOZO.nl - info@oozo.nl - Gegevens verwijderen? | Disclaimer | Privacy statement