Woning Prins Hendriklaan 69 BRUNSSUM

Prins Hendriklaan 69, 6442AB BRUNSSUM

Ontvang updates voor De Eggen

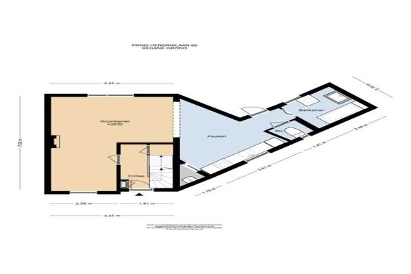
Het adres van deze woning uit 1919 is Prins Hendriklaan 69 te BRUNSSUM. Het pand heeft een oppervlakte van 101m² en een perceeloppervlakte van 191m² en heeft 3 kamers kamers waarvan 2 slaapkamers. De geschatte waarde van deze woning is € 169.000.

Bekijk alle woningen in De Eggen

Gegevens van Eengezinswoning

Bouwjaar
1919
Geschatte waarde
€ 169.000
Oppervlakte
101 m2
Aantal kamers
3 kamers
Slaapkamers
2
Tuin
Tuin

Voorzieningen in de buurt

Boodschappen0,7 km
Grote supermarkt0,5 km
Cafetaria0,3 km
Restaurant0,3 km
Huisarts0,4 km
Ziekenhuis0,7 km
Kinderdagverblijf0,5 km
BSO0,5 km
Alle voorzieningen in De Eggen

Binnenkijken bij Prins Hendriklaan 69 te BRUNSSUM

Meer meldingen in deze omgeving

Binnenkijken bij
Zondag 7-12-2025
Prins Hendriklaan 65, 6442AB Brunssum

Binnenkijken bij
Dinsdag 25-11-2025
Zandstraat 9, 6443XZ Brunssum

112 melding
Woensdag 5-11-2025 om 13:07
Ingelsbroek, 6442AH Brunssum

Binnenkijken bij
Donderdag 30-10-2025
Oranjestraat 60, 6442XJ Brunssum

112 melding
Dinsdag 28-10-2025 om 05:06
De Insel, 6442AJ Brunssum

112 melding
Maandag 20-10-2025 om 11:21
Ingelsbroek, 6442AH Brunssum

112 melding
Maandag 20-10-2025 om 10:22
Ingelsbroek, 6442AH Brunssum

Binnenkijken bij
Maandag 22-9-2025
Koekoekstraat 5, 6443XS Brunssum

Direct een e-mail ontvangen bij nieuwe meldingen in deze regio?

Meld je dan GRATIS aan voor de Oozo Alert service voor De Eggen

Instellen

Meer nieuws in De Eggen

Weten hoe eenvoudig het is om af te vallen? Zonder pillen en smeersels en zonder je in het zweet te werken!
Kijk op eenvoudig-afvallen.nl

© 2012 - 2025 OOZO.nl - info@oozo.nl - Gegevens verwijderen? | Disclaimer | Privacy statement