Woning Achterste Kamp 16 Bunschoten-Spakenburg

Achterste Kamp 16, 3751JJ Bunschoten-Spakenburg

Ontvang updates voor Rengerswetering

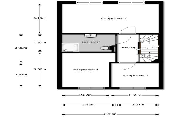
Het adres van deze woning uit 2012 is Achterste Kamp 16 te Bunschoten-Spakenburg. Het pand heeft een oppervlakte van 130m² en een perceeloppervlakte van 129m² en heeft 4 kamers kamers waarvan 3 slaapkamers. De geschatte waarde van deze woning is € 317.500.

Bekijk alle woningen in Rengerswetering

Gegevens van Eengezinswoning, tussenwoning

Bouwjaar
2012
Geschatte waarde
€ 317.500
Oppervlakte
130 m2
Inhoud
428 m3
Aantal kamers
4 kamers
Slaapkamers
3
Soort bouw
Bestaande bouw
Ligging
In woonwijk

Voorzieningen in de buurt

Boodschappen1,6 km
Grote supermarkt1,9 km
Cafetaria1,5 km
Restaurant1,6 km
Huisarts1,7 km
Ziekenhuis1,7 km
Kinderdagverblijf1,6 km
BSO1,6 km
Alle voorzieningen in Rengerswetering

Binnenkijken bij Achterste Kamp 16 te Bunschoten-Spakenburg

Meer meldingen in deze omgeving

Nieuw bedrijf
December 2025
Verlengde Oostsingel 8, 3751VR Bunschoten-Spakenburg

Nieuw bedrijf
December 2025
Verlengde Oostsingel 8, 3751VR Bunschoten-Spakenburg

Binnenkijken bij
Vrijdag 14-11-2025
Hartmanskamp 8, 3751JG Bunschoten-Spakenburg

Binnenkijken bij
Woensdag 29-10-2025
Bunschoter Veenkamp 40, 3751JD Bunschoten-Spakenburg

Nieuw bedrijf
Oktober 2025
Tabakskamp 65, 3751JN Bunschoten-Spakenburg

112 melding
Dinsdag 21-10-2025 om 10:21
Huurdemanskamp, 3751JA Bunschoten-Spakenburg

112 melding
Maandag 13-10-2025 om 06:43
Huurdemanskamp, 3751JA Bunschoten-Spakenburg

112 melding
Maandag 13-10-2025 om 06:43
Huurdemanskamp, 3751JA Bunschoten-Spakenburg

Direct een e-mail ontvangen bij nieuwe meldingen in deze regio?

Meld je dan GRATIS aan voor de Oozo Alert service voor Rengerswetering

Instellen

Meer nieuws in Rengerswetering

Weten hoe eenvoudig het is om af te vallen? Zonder pillen en smeersels en zonder je in het zweet te werken!
Kijk op eenvoudig-afvallen.nl

© 2012 - 2025 OOZO.nl - info@oozo.nl - Gegevens verwijderen? | Disclaimer | Privacy statement