Woning Prinses Irenestraat 23 Bunschoten-Spakenburg

Prinses Irenestraat 23, 3751DJ Bunschoten-Spakenburg

Ontvang updates voor Spakenburg

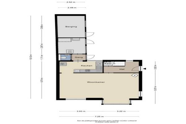
Het adres van deze woning uit 1961 is Prinses Irenestraat 23 te Bunschoten-Spakenburg. Het pand heeft een oppervlakte van 136m² en een perceeloppervlakte van 200m² en heeft 6 kamers kamers waarvan 5 slaapkamers. De geschatte waarde van deze woning is € 575.000.

Bekijk alle woningen in Spakenburg

Gegevens van Eengezinswoning

Bouwjaar
1961
Geschatte waarde
€ 575.000
Oppervlakte
136 m2
Inhoud
395 m3
Aantal kamers
6 kamers
Slaapkamers
5
Tuin
Tuin

Voorzieningen in de buurt

Boodschappen0,2 km
Grote supermarkt0,5 km
Cafetaria0,4 km
Restaurant0,3 km
Huisarts1,2 km
Ziekenhuis1,2 km
Kinderdagverblijf0,7 km
BSO1,8 km
Alle voorzieningen in Spakenburg

Binnenkijken bij Prinses Irenestraat 23 te Bunschoten-Spakenburg

Meer meldingen in deze omgeving

Binnenkijken bij
Vrijdag 3-4-2026
Havenstraat 43, 3752AB Bunschoten-Spakenburg

Binnenkijken bij
Donderdag 2-4-2026
Zuidwenk 59, 3751CB Bunschoten-Spakenburg

Binnenkijken bij
Woensdag 1-4-2026
Broerswetering 38, 3752AM Bunschoten-Spakenburg

Binnenkijken bij
Dinsdag 31-3-2026
Visrokersplein 25, 3752BR Bunschoten-Spakenburg

Binnenlands nieuws
Maandag 30-3-2026
Spakenburg

Binnenkijken bij
Vrijdag 27-3-2026
Colijnstraat 33, 3752AP Bunschoten-Spakenburg

Nieuw bedrijf
Maart 2026
Prinses Margrietstraat 3, 3751CP Bunschoten-Spakenburg

Nieuw bedrijf
Maart 2026
Prinses Margrietstraat 19, 3751CP Bunschoten-Spakenburg

Direct een e-mail ontvangen bij nieuwe meldingen in deze regio?

Meld je dan GRATIS aan voor de Oozo Alert service voor Spakenburg

Instellen

Meer nieuws in Spakenburg

Weten hoe eenvoudig het is om af te vallen? Zonder pillen en smeersels en zonder je in het zweet te werken!
Kijk op eenvoudig-afvallen.nl

© 2012 - 2026 OOZO.nl - info@oozo.nl - Gegevens verwijderen? | Disclaimer | Privacy statement