Woning Chopinstraat 167 Capelle aan den IJssel

Chopinstraat 167, 2901EE Capelle aan den IJssel

Ontvang updates voor Chopin-buurt

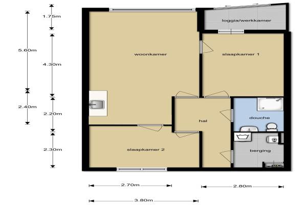
Het adres van deze woning uit 1991 is Chopinstraat 167 te Capelle aan den IJssel. Het pand heeft een oppervlakte van 68m² en heeft 3 kamers kamers waarvan 2 slaapkamers. De geschatte waarde van deze woning is € 142.500.

Bekijk alle woningen in Chopin-buurt

Gegevens van Portiekflat (appartement)

Bouwjaar
1991
Geschatte waarde
€ 142.500
Oppervlakte
68 m2
Inhoud
182 m3
Aantal kamers
3 kamers
Slaapkamers
2
Badkamers
1 badkamer en 1 apart toilet
Soort bouw
Bestaande bouw
Eigendomssituatie
Volle eigendom
Ligging
Aan water, aan rustige weg, in woonwijk en vrij uitzicht

Voorzieningen in de buurt

Boodschappen0,9 km
Grote supermarkt0,9 km
Cafetaria0,9 km
Restaurant0,8 km
Huisarts0,3 km
Ziekenhuis3,4 km
Kinderdagverblijf0,6 km
BSO0,7 km
Alle voorzieningen in Chopin-buurt

Binnenkijken bij Chopinstraat 167 te Capelle aan den IJssel

Meer meldingen in deze omgeving

112 melding
Zaterdag 8-11-2025 om 18:22
Tsjaikovskistraat, 2901HM Capelle aan den IJssel

112 melding
Donderdag 6-11-2025 om 05:54
Tsjaikovskistraat, 2901HM Capelle aan den IJssel

112 melding
Donderdag 6-11-2025 om 05:54
Tsjaikovskistraat, 2901HM Capelle aan den IJssel

112 melding
Donderdag 6-11-2025 om 05:52
Tsjaikovskistraat, 2901HM Capelle aan den IJssel

112 melding
Maandag 3-11-2025 om 21:59
Tsjaikovskistraat, 2901HM Capelle aan den IJssel

112 melding
Donderdag 30-10-2025 om 12:41
Tsjaikovskistraat, 2901HM Capelle aan den IJssel

112 melding
Dinsdag 28-10-2025 om 10:29
Tsjaikovskistraat, 2901HM Capelle aan den IJssel

112 melding
Zondag 26-10-2025 om 19:13
Tsjaikovskistraat, 2901HM Capelle aan den IJssel

Direct een e-mail ontvangen bij nieuwe meldingen in deze regio?

Meld je dan GRATIS aan voor de Oozo Alert service voor Chopin-buurt

Instellen

Meer nieuws in Chopin-buurt

Weten hoe eenvoudig het is om af te vallen? Zonder pillen en smeersels en zonder je in het zweet te werken!
Kijk op eenvoudig-afvallen.nl

© 2012 - 2025 OOZO.nl - info@oozo.nl - Gegevens verwijderen? | Disclaimer | Privacy statement