Woning Paganinistraat 54 Capelle aan den IJssel

Paganinistraat 54, 2901KG Capelle aan den IJssel

Ontvang updates voor Paganini-buurt

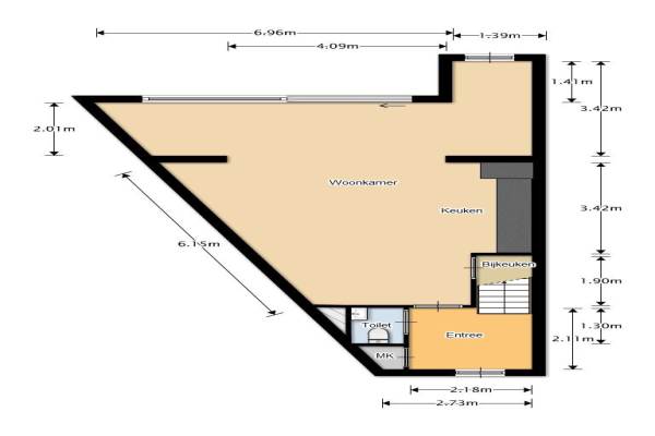
Het adres van deze woning uit 1996 is Paganinistraat 54 te Capelle aan den IJssel. Het pand heeft een oppervlakte van 121m² en een perceeloppervlakte van 170m² en heeft 5 kamers kamers waarvan 4 slaapkamers. De geschatte waarde van deze woning is € 275.000.

Bekijk alle woningen in Paganini-buurt

Gegevens van Eengezinswoning, tussenwoning

Bouwjaar
1996
Geschatte waarde
€ 275.000
Oppervlakte
121 m2
Inhoud
360 m3
Aantal kamers
5 kamers
Slaapkamers
4
Badkamers
1 badkamer en 1 apart toilet
Soort bouw
Bestaande bouw
Eigendomssituatie
Volle eigendom
Ligging
Aan park en in woonwijk
Tuin
Achtertuin en voortuin
Achtertuin
108 m² (9m diep en 12m breed)

Voorzieningen in de buurt

Boodschappen0,6 km
Grote supermarkt0,6 km
Cafetaria0,6 km
Restaurant1,2 km
Huisarts0,6 km
Ziekenhuis3,7 km
Kinderdagverblijf0,6 km
BSO0,7 km
Alle voorzieningen in Paganini-buurt

Binnenkijken bij Paganinistraat 54 te Capelle aan den IJssel

Meer meldingen in deze omgeving

112 melding
Zaterdag 15-11-2025 om 09:01
Diabellistraat, 2901KC Capelle aan den IJssel

Nieuw bedrijf
November 2025
Wagnerstraat 26, 2901KJ Capelle aan den IJssel

112 melding
Woensdag 12-11-2025 om 21:12
Wagnerstraat, 2901KJ Capelle aan den IJssel

Binnenkijken bij
Dinsdag 11-11-2025
Bachstraat 52, 2901JZ Capelle aan den IJssel

112 melding
Vrijdag 7-11-2025 om 17:55
Diabellistraat, 2901KC Capelle aan den IJssel

112 melding
Zaterdag 1-11-2025 om 19:37
Paganinistraat, 2901KG Capelle aan den IJssel

Binnenkijken bij
Woensdag 29-10-2025
Paganinistraat 99, 2901KG Capelle aan den IJssel

112 melding
Dinsdag 28-10-2025 om 07:38
Wagnerstraat, 2901KJ Capelle aan den IJssel

Direct een e-mail ontvangen bij nieuwe meldingen in deze regio?

Meld je dan GRATIS aan voor de Oozo Alert service voor Paganini-buurt

Instellen

Meer nieuws in Paganini-buurt

Weten hoe eenvoudig het is om af te vallen? Zonder pillen en smeersels en zonder je in het zweet te werken!
Kijk op eenvoudig-afvallen.nl

© 2012 - 2025 OOZO.nl - info@oozo.nl - Gegevens verwijderen? | Disclaimer | Privacy statement