Woning Merelhoven 297 Capelle aan den IJssel

Merelhoven 297, 2902KE Capelle aan den IJssel

Ontvang updates voor Merelbuurt

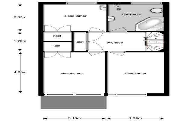
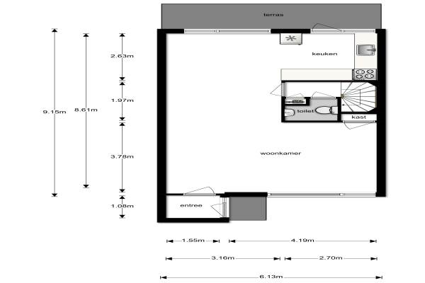
Het adres van deze woning uit 1967 is Merelhoven 297 te Capelle aan den IJssel. Het pand heeft een oppervlakte van 140m² en een perceeloppervlakte van 133m² en heeft 6 kamers kamers waarvan 5 slaapkamers. De geschatte waarde van deze woning is € 275.000.

Bekijk alle woningen in Merelbuurt

Gegevens van Eengezinswoning, tussenwoning

Bouwjaar
1967
Geschatte waarde
€ 275.000
Oppervlakte
140 m2
Inhoud
400 m3
Aantal kamers
6 kamers
Slaapkamers
5
Badkamers
1 apart toilet
Soort bouw
Bestaande bouw
Eigendomssituatie
Volle eigendom
Ligging
In woonwijk en vrij uitzicht
Tuin
Achtertuin en voortuin
Achtertuin
54 m² (9m diep en 6m breed)

Voorzieningen in de buurt

Boodschappen0,7 km
Grote supermarkt0,8 km
Cafetaria0,6 km
Restaurant0,6 km
Huisarts0,9 km
Ziekenhuis2,6 km
Kinderdagverblijf0,9 km
BSO0,8 km
Alle voorzieningen in Merelbuurt

Binnenkijken bij Merelhoven 297 te Capelle aan den IJssel

Meer meldingen in deze omgeving

112 melding
Zondag 15-2-2026 om 15:54
Merelhoven, 2902KM Capelle aan den IJssel

112 melding
Vrijdag 13-2-2026 om 14:05
Merelhoven, 2902KD Capelle aan den IJssel

112 melding
Vrijdag 13-2-2026 om 10:41
Merellaan, 2902JG Capelle aan den IJssel

112 melding
Maandag 9-2-2026 om 14:33
Merellaan, 2902JL Capelle aan den IJssel

112 melding
Maandag 9-2-2026 om 13:35
Lijstersingel, 2902JD Capelle aan den IJssel

112 melding
Woensdag 4-2-2026 om 13:57
Fazantstraat, 2902JA Capelle aan den IJssel

112 melding
Vrijdag 30-1-2026 om 14:58
Merelhoven, 2902KE Capelle aan den IJssel

112 melding
Donderdag 29-1-2026 om 13:13
Merellaan, 2902JL Capelle aan den IJssel

Direct een e-mail ontvangen bij nieuwe meldingen in deze regio?

Meld je dan GRATIS aan voor de Oozo Alert service voor Merelbuurt

Instellen

Meer nieuws in Merelbuurt

Weten hoe eenvoudig het is om af te vallen? Zonder pillen en smeersels en zonder je in het zweet te werken!
Kijk op eenvoudig-afvallen.nl

© 2012 - 2026 OOZO.nl - info@oozo.nl - Gegevens verwijderen? | Disclaimer | Privacy statement