Woning Lemelerberg 132 Capelle aan den IJssel

Lemelerberg 132, 2905NL Capelle aan den IJssel

Ontvang updates voor Bergenbuurt

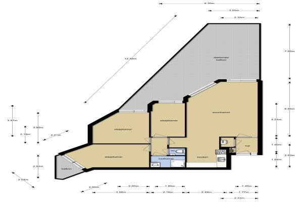
Het adres van deze woning uit 1978 is Lemelerberg 132 te Capelle aan den IJssel. Het pand heeft een oppervlakte van 86m² en heeft 4 kamers kamers waarvan 3 slaapkamers. De geschatte waarde van deze woning is € 187.500.

Bekijk alle woningen in Bergenbuurt

Gegevens van Portiekflat (appartement)

Bouwjaar
1978
Geschatte waarde
€ 187.500
Oppervlakte
86 m2
Inhoud
287 m3
Aantal kamers
4 kamers
Slaapkamers
3
Badkamers
1 apart toilet
Soort bouw
Bestaande bouw
Eigendomssituatie
Volle eigendom
Ligging
Beschutte ligging

Voorzieningen in de buurt

Boodschappen1,1 km
Grote supermarkt0,5 km
Cafetaria0,6 km
Restaurant0,5 km
Huisarts1,1 km
Ziekenhuis4,3 km
Kinderdagverblijf0,5 km
BSO0,5 km
Alle voorzieningen in Bergenbuurt

Binnenkijken bij Lemelerberg 132 te Capelle aan den IJssel

Meer meldingen in deze omgeving

112 melding
Maandag 16-2-2026 om 04:39
De Vallei, 2905NP Capelle aan den IJssel

112 melding
Woensdag 11-2-2026 om 22:14
De Vallei, 2905NP Capelle aan den IJssel

112 melding
Woensdag 11-2-2026 om 22:14
De Vallei, 2905NP Capelle aan den IJssel

Binnenkijken bij
Dinsdag 10-2-2026
Woldberg 155, 2905BZ Capelle aan den IJssel

Binnenkijken bij
Dinsdag 10-2-2026
Lemelerberg 124, 2905NK Capelle aan den IJssel

112 melding
Maandag 9-2-2026 om 07:12
Vaalserberg, 2905PK Capelle aan den IJssel

112 melding
Zaterdag 7-2-2026 om 22:08
Zijpenberg, 2905RT Capelle aan den IJssel

112 melding
Vrijdag 6-2-2026 om 12:09
De Vallei, 2905NP Capelle aan den IJssel

Direct een e-mail ontvangen bij nieuwe meldingen in deze regio?

Meld je dan GRATIS aan voor de Oozo Alert service voor Bergenbuurt

Instellen

Meer nieuws in Bergenbuurt

Weten hoe eenvoudig het is om af te vallen? Zonder pillen en smeersels en zonder je in het zweet te werken!
Kijk op eenvoudig-afvallen.nl

© 2012 - 2026 OOZO.nl - info@oozo.nl - Gegevens verwijderen? | Disclaimer | Privacy statement