Woning Waterberg 108 Capelle aan den IJssel

Waterberg 108, 2905RJ Capelle aan den IJssel

Ontvang updates voor Bergenbuurt

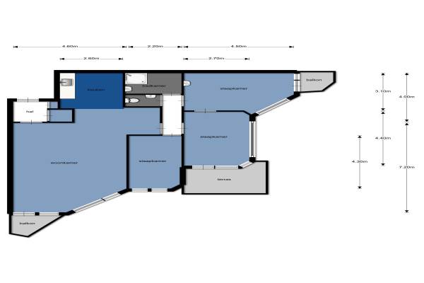
Het adres van deze woning uit 1978 is Waterberg 108 te Capelle aan den IJssel. Het pand heeft een oppervlakte van 94m² en heeft 4 kamers kamers waarvan 3 slaapkamers. De geschatte waarde van deze woning is € 189.000.

Bekijk alle woningen in Bergenbuurt

Gegevens van Portiekflat (appartement)

Bouwjaar
1978
Geschatte waarde
€ 189.000
Oppervlakte
94 m2
Inhoud
260 m3
Aantal kamers
4 kamers
Slaapkamers
3
Badkamers
1 badkamer en 1 apart toilet
Soort bouw
Bestaande bouw
Eigendomssituatie
Volle eigendom
Ligging
In woonwijk

Voorzieningen in de buurt

Boodschappen1,1 km
Grote supermarkt0,5 km
Cafetaria0,6 km
Restaurant0,5 km
Huisarts1,1 km
Ziekenhuis4,3 km
Kinderdagverblijf0,5 km
BSO0,5 km
Alle voorzieningen in Bergenbuurt

Binnenkijken bij Waterberg 108 te Capelle aan den IJssel

Meer meldingen in deze omgeving

112 melding
Dinsdag 23-12-2025 om 11:20
Waterberg, 2905RK Capelle aan den IJssel

Nieuw bedrijf
December 2025
Braamberg 109, 2905BK Capelle aan den IJssel

Nieuw bedrijf
December 2025
Braamberg 109, 2905BK Capelle aan den IJssel

112 melding
Vrijdag 19-12-2025 om 22:20
Waterberg, Capelle aan den IJssel

112 melding
Vrijdag 19-12-2025 om 21:40
Waterberg, 2905RL Capelle aan den IJssel

112 melding
Woensdag 17-12-2025 om 16:30
De Vallei, 2905NP Capelle aan den IJssel

112 melding
Vrijdag 12-12-2025 om 00:01
Vaalserberg, Capelle aan den IJssel

112 melding
Woensdag 10-12-2025 om 18:54
De Vallei, 2905NP Capelle aan den IJssel

Direct een e-mail ontvangen bij nieuwe meldingen in deze regio?

Meld je dan GRATIS aan voor de Oozo Alert service voor Bergenbuurt

Instellen

Meer nieuws in Bergenbuurt

Weten hoe eenvoudig het is om af te vallen? Zonder pillen en smeersels en zonder je in het zweet te werken!
Kijk op eenvoudig-afvallen.nl

© 2012 - 2025 OOZO.nl - info@oozo.nl - Gegevens verwijderen? | Disclaimer | Privacy statement