Woning Waldhoorn 66 Capelle aan den IJssel

Waldhoorn 66, 2907SK Capelle aan den IJssel

Ontvang updates voor Instrumentenbuurt

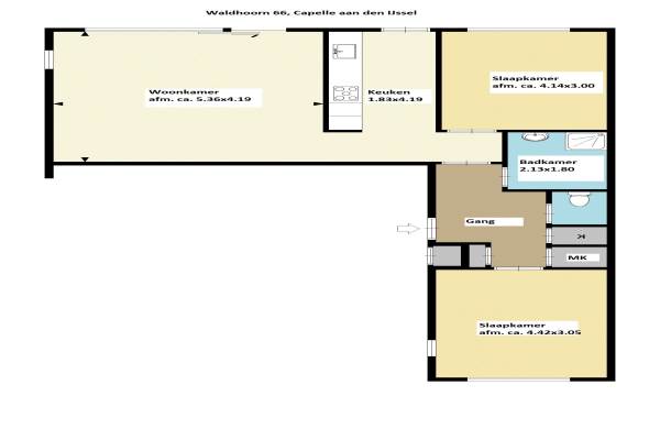
Het adres van deze woning uit 1981 is Waldhoorn 66 te Capelle aan den IJssel. Het pand heeft een oppervlakte van 78m² en heeft 3 kamers kamers waarvan 2 slaapkamers. De geschatte waarde van deze woning is € 165.000.

Bekijk alle woningen in Instrumentenbuurt

Gegevens van Benedenwoning (appartement)

Bouwjaar
1981
Geschatte waarde
€ 165.000
Oppervlakte
78 m2
Inhoud
210 m3
Aantal kamers
3 kamers
Slaapkamers
2
Badkamers
1 badkamer en 1 apart toilet
Soort bouw
Bestaande bouw
Eigendomssituatie
Volle eigendom
Ligging
Aan rustige weg en in woonwijk
Tuin
Achtertuin
Achtertuin
69 m² (6m diep en 11,56m breed)

Voorzieningen in de buurt

Boodschappen0,7 km
Grote supermarkt0,6 km
Cafetaria0,6 km
Restaurant0,5 km
Huisarts0,6 km
Ziekenhuis4,1 km
Kinderdagverblijf0,3 km
BSO0,3 km
Alle voorzieningen in Instrumentenbuurt

Binnenkijken bij Waldhoorn 66 te Capelle aan den IJssel

Meer meldingen in deze omgeving

Nieuw bedrijf
November 2025
Floris Burgwal 153, 2907PD Capelle aan den IJssel

Nieuw bedrijf
November 2025
Waldhoorn 17, 2907SJ Capelle aan den IJssel

112 melding
Dinsdag 25-11-2025 om 22:53
Bazuin, 2907GH Capelle aan den IJssel

112 melding
Maandag 24-11-2025 om 22:45
Bazuin, 2907GH Capelle aan den IJssel

112 melding
Maandag 24-11-2025 om 08:35
Bazuin, 2907GH Capelle aan den IJssel

112 melding
Zaterdag 22-11-2025 om 18:42
Bazuin, 2907GH Capelle aan den IJssel

112 melding
Vrijdag 21-11-2025 om 15:26
Bazuin, 2907GH Capelle aan den IJssel

112 melding
Dinsdag 18-11-2025 om 10:48
Gong, 2907GG Capelle aan den IJssel

Direct een e-mail ontvangen bij nieuwe meldingen in deze regio?

Meld je dan GRATIS aan voor de Oozo Alert service voor Instrumentenbuurt

Instellen

Meer nieuws in Instrumentenbuurt

Weten hoe eenvoudig het is om af te vallen? Zonder pillen en smeersels en zonder je in het zweet te werken!
Kijk op eenvoudig-afvallen.nl

© 2012 - 2025 OOZO.nl - info@oozo.nl - Gegevens verwijderen? | Disclaimer | Privacy statement