Woning Ruiterweg 29 Castricum

Ruiterweg 29, 1901BH Castricum

Ontvang updates voor Oranjebuurt

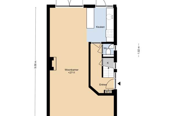
Het adres van deze woning uit 1930 is Ruiterweg 29 te Castricum. Het pand heeft een oppervlakte van 105m² en een perceeloppervlakte van 208m² en heeft 6 kamers kamers waarvan 4 slaapkamers. De geschatte waarde van deze woning is € 525.000.

Bekijk alle woningen in Oranjebuurt

Gegevens van Eengezinswoning, 2-onder-1-kapwoning

Bouwjaar
1930
Geschatte waarde
€ 525.000
Oppervlakte
105 m2
Inhoud
358 m3
Aantal kamers
6 kamers
Slaapkamers
4
Badkamers
1 badkamer en 1 apart toilet
Soort bouw
Bestaande bouw
Eigendomssituatie
Volle eigendom
Ligging
In woonwijk en vrij uitzicht
Tuin
Achtertuin, voortuin en zijtuin
Achtertuin
83 m² (10,6 meter diep en 7,8 meter breed)

Voorzieningen in de buurt

Boodschappen0,6 km
Grote supermarkt0,5 km
Cafetaria0,4 km
Restaurant0,6 km
Huisarts0,5 km
Ziekenhuis4,3 km
Kinderdagverblijf0,3 km
BSO0,4 km
Alle voorzieningen in Oranjebuurt

Binnenkijken bij Ruiterweg 29 te Castricum

Meer meldingen in deze omgeving

112 melding
Zondag 15-2-2026 om 20:47
Alkmaarderstraatweg, 1901DC Castricum

112 melding
Vrijdag 13-2-2026 om 15:02
Willem de Zwijgerlaan, 1901CP Castricum

112 melding
Donderdag 12-2-2026 om 14:46
Willem de Zwijgerlaan, 1901CS Castricum

112 melding
Donderdag 12-2-2026 om 00:20
Willem de Rijkelaan, Castricum

112 melding
Donderdag 12-2-2026 om 00:20
Willem de Rijkelaan, Castricum

112 melding
Woensdag 11-2-2026 om 13:03
Willem de Zwijgerlaan, 1901CS Castricum

112 melding
Woensdag 11-2-2026 om 13:03
Willem de Zwijgerlaan, 1901CS Castricum

112 melding
Dinsdag 10-2-2026 om 23:44
Alkmaarderstraatweg, Castricum

Direct een e-mail ontvangen bij nieuwe meldingen in deze regio?

Meld je dan GRATIS aan voor de Oozo Alert service voor Oranjebuurt

Instellen

Meer nieuws in Oranjebuurt

Weten hoe eenvoudig het is om af te vallen? Zonder pillen en smeersels en zonder je in het zweet te werken!
Kijk op eenvoudig-afvallen.nl

© 2012 - 2026 OOZO.nl - info@oozo.nl - Gegevens verwijderen? | Disclaimer | Privacy statement