Woning De Loet 250 Castricum

De Loet 250, 1902BS Castricum

Ontvang updates voor Molendijk

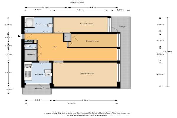
Het adres van deze woning uit 1975 is De Loet 250 te Castricum. Het pand heeft een oppervlakte van 101m² en heeft 4 kamers kamers waarvan 3 slaapkamers. De geschatte waarde van deze woning is € 225.000.

Bekijk alle woningen in Molendijk

Gegevens van Bovenwoning (appartement)

Bouwjaar
1975
Geschatte waarde
€ 225.000
Oppervlakte
101 m2
Inhoud
316 m3
Aantal kamers
4 kamers
Slaapkamers
3
Badkamers
1 badkamer en 1 apart toilet
Soort bouw
Bestaande bouw
Eigendomssituatie
Volle eigendom
Ligging
In woonwijk en vrij uitzicht

Voorzieningen in de buurt

Boodschappen0,5 km
Grote supermarkt0,6 km
Cafetaria0,6 km
Restaurant0,5 km
Huisarts0,5 km
Ziekenhuis4,4 km
Kinderdagverblijf0,4 km
BSO0,4 km
Alle voorzieningen in Molendijk

Binnenkijken bij De Loet 250 te Castricum

Meer meldingen in deze omgeving

112 melding
Zaterdag 18-10-2025 om 14:56
Geesterduinweg, Castricum

112 melding
Donderdag 16-10-2025 om 12:23
Henri Dunantsingel, 1902EC Castricum

Binnenkijken bij
Donderdag 16-10-2025
Henri Dunantsingel 222, 1902ED Castricum

112 melding
Dinsdag 14-10-2025 om 14:14
Cieweg, 1902AB Castricum

112 melding
Dinsdag 14-10-2025 om 13:23
Martin Luther Kinglaan, 1902DP Castricum

112 melding
Dinsdag 14-10-2025 om 13:23
Henri Dunantsingel, Castricum

112 melding
Dinsdag 14-10-2025 om 13:20
Molenweide, 1902CH Castricum

112 melding
Dinsdag 14-10-2025 om 11:13
Cieweg, 1902AB Castricum

Direct een e-mail ontvangen bij nieuwe meldingen in deze regio?

Meld je dan GRATIS aan voor de Oozo Alert service voor Molendijk

Instellen

Meer nieuws in Molendijk

Weten hoe eenvoudig het is om af te vallen? Zonder pillen en smeersels en zonder je in het zweet te werken!
Kijk op eenvoudig-afvallen.nl

© 2012 - 2025 OOZO.nl - info@oozo.nl - Gegevens verwijderen? | Disclaimer | Privacy statement