Woning Walingstuin 26 Castricum

Walingstuin 26, 1902BC Castricum

Ontvang updates voor Molendijk

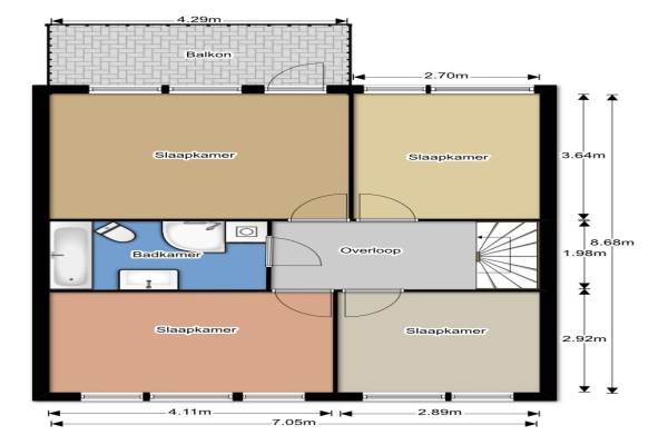
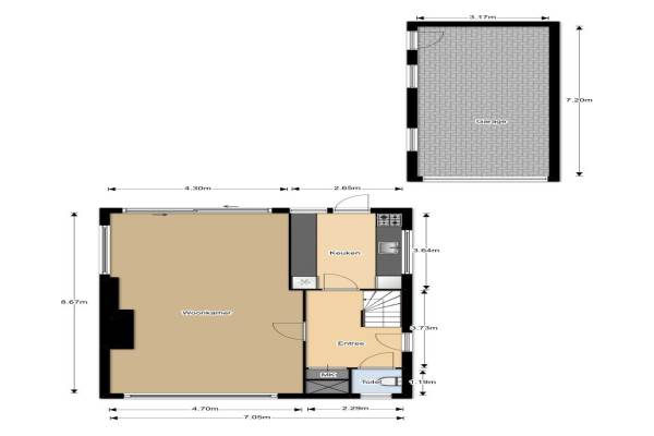
Het adres van deze woning uit 1968 is Walingstuin 26 te Castricum. Het pand heeft een oppervlakte van 154m² en een perceeloppervlakte van 402m² en heeft 7 kamers kamers waarvan 6 slaapkamers. De geschatte waarde van deze woning is € 560.000.

Bekijk alle woningen in Molendijk

Gegevens van Eengezinswoning, vrijstaande woning

Bouwjaar
1968
Geschatte waarde
€ 560.000
Oppervlakte
154 m2
Inhoud
524 m3
Aantal kamers
7 kamers
Slaapkamers
6
Badkamers
2 badkamers en 1 apart toilet
Soort bouw
Bestaande bouw
Eigendomssituatie
Volle eigendom
Ligging
In woonwijk
Tuin
Tuin rondom

Voorzieningen in de buurt

Boodschappen0,5 km
Grote supermarkt0,6 km
Cafetaria0,6 km
Restaurant0,5 km
Huisarts0,5 km
Ziekenhuis4,4 km
Kinderdagverblijf0,4 km
BSO0,4 km
Alle voorzieningen in Molendijk

Binnenkijken bij Walingstuin 26 te Castricum

Meer meldingen in deze omgeving

112 melding
Woensdag 17-12-2025 om 21:18
Nelson Mandelahof, 1902EH Castricum

112 melding
Woensdag 17-12-2025 om 18:28
Het Korte Land, 1902BA Castricum

112 melding
Woensdag 17-12-2025 om 18:28
Het Korte Land, 1902BA Castricum

112 melding
Woensdag 17-12-2025 om 18:27
Het Korte Land, 1902BA Castricum

112 melding
Zaterdag 13-12-2025 om 22:34
Cralencroft, 1902BE Castricum

112 melding
Zaterdag 13-12-2025 om 22:31
Cralencroft, 1902BE Castricum

112 melding
Vrijdag 12-12-2025 om 14:56
Dag Hammarskjöldlaan, 1902DT Castricum

Binnenkijken bij
Vrijdag 12-12-2025
De Loet 54, 1902BK Castricum

Direct een e-mail ontvangen bij nieuwe meldingen in deze regio?

Meld je dan GRATIS aan voor de Oozo Alert service voor Molendijk

Instellen

Meer nieuws in Molendijk

Weten hoe eenvoudig het is om af te vallen? Zonder pillen en smeersels en zonder je in het zweet te werken!
Kijk op eenvoudig-afvallen.nl

© 2012 - 2025 OOZO.nl - info@oozo.nl - Gegevens verwijderen? | Disclaimer | Privacy statement