Woning De Loet 82 Castricum

De Loet 82, 1902BL Castricum

Ontvang updates voor Molendijk

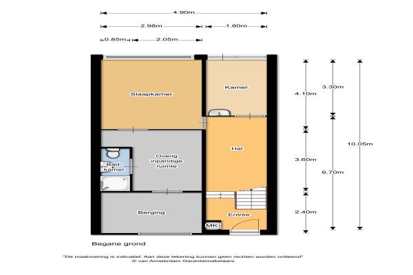
Het adres van deze woning uit 1972 is De Loet 82 te Castricum. Het pand heeft een oppervlakte van 175m² en een perceeloppervlakte van 189m² en heeft 6 kamers kamers waarvan 5 slaapkamers. De geschatte waarde van deze woning is € 295.000.

Bekijk alle woningen in Molendijk

Gegevens van Eengezinswoning, hoekwoning (drive-in woning)

Bouwjaar
1972
Geschatte waarde
€ 295.000
Oppervlakte
175 m2
Inhoud
555 m3
Aantal kamers
6 kamers
Slaapkamers
5
Badkamers
2 badkamers en 1 apart toilet
Soort bouw
Bestaande bouw
Eigendomssituatie
Volle eigendom
Ligging
Aan rustige weg en in woonwijk
Tuin
Achtertuin, voortuin en zijtuin
Achtertuin
84 m² (10,5m diep en 8m breed)

Voorzieningen in de buurt

Boodschappen0,5 km
Grote supermarkt0,6 km
Cafetaria0,6 km
Restaurant0,5 km
Huisarts0,5 km
Ziekenhuis4,4 km
Kinderdagverblijf0,4 km
BSO0,4 km
Alle voorzieningen in Molendijk

Binnenkijken bij De Loet 82 te Castricum

Meer meldingen in deze omgeving

112 melding
Dinsdag 24-2-2026 om 13:41
Cralencroft, 1902BE Castricum

112 melding
Dinsdag 24-2-2026 om 13:12
Cralencroft, 1902BE Castricum

Nieuw bedrijf
Februari 2026
Henri Dunantsingel 116, 1902ED Castricum

112 melding
Dinsdag 24-2-2026 om 08:15
Duyncroft, 1902BD Castricum

112 melding
Maandag 23-2-2026 om 09:49
Walingstuin, 1902BB Castricum

112 melding
Zondag 22-2-2026 om 18:05
Walingstuin, 1902BB Castricum

112 melding
Donderdag 19-2-2026 om 14:44
Raadhuisplein, 1902CA Castricum

112 melding
Donderdag 19-2-2026 om 14:44
Raadhuisplein, 1902CA Castricum

Direct een e-mail ontvangen bij nieuwe meldingen in deze regio?

Meld je dan GRATIS aan voor de Oozo Alert service voor Molendijk

Instellen

Meer nieuws in Molendijk

Weten hoe eenvoudig het is om af te vallen? Zonder pillen en smeersels en zonder je in het zweet te werken!
Kijk op eenvoudig-afvallen.nl

© 2012 - 2026 OOZO.nl - info@oozo.nl - Gegevens verwijderen? | Disclaimer | Privacy statement