Woning Bloemgaarde 85 Castricum

Bloemgaarde 85, 1902HC Castricum

Ontvang updates voor Noord-End

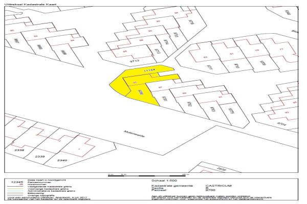
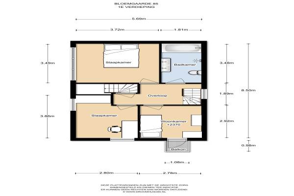
Het adres van deze woning uit 1974 is Bloemgaarde 85 te Castricum. Het pand heeft een oppervlakte van 121m² en een perceeloppervlakte van 303m² en heeft 5 kamers kamers waarvan 4 slaapkamers. De geschatte waarde van deze woning is € 385.000.

Bekijk alle woningen in Noord-End

Gegevens van Eengezinswoning, hoekwoning

Bouwjaar
1974
Geschatte waarde
€ 385.000
Oppervlakte
121 m2
Inhoud
472 m3
Aantal kamers
5 kamers
Slaapkamers
4
Badkamers
1 badkamer en 1 apart toilet
Soort bouw
Bestaande bouw
Eigendomssituatie
Volle eigendom
Ligging
Aan water, in woonwijk en vrij uitzicht
Tuin
Achtertuin, voortuin en zijtuin
Achtertuin
124 m² (13m diep en 9,5m breed)

Voorzieningen in de buurt

Boodschappen0,9 km
Grote supermarkt0,9 km
Cafetaria1,0 km
Restaurant0,9 km
Huisarts1,1 km
Ziekenhuis3,5 km
Kinderdagverblijf0,4 km
BSO0,4 km
Alle voorzieningen in Noord-End

Binnenkijken bij Bloemgaarde 85 te Castricum

Meer meldingen in deze omgeving

112 melding
Dinsdag 16-12-2025 om 06:19
Pastinaak, 1902JC Castricum

Nieuw bedrijf
December 2025
Kemphaan 9, 1902KA Castricum

Nieuw bedrijf
December 2025
Kemphaan 9, 1902KA Castricum

112 melding
Maandag 15-12-2025 om 18:06
Tijm, 1902JX Castricum

112 melding
Maandag 15-12-2025 om 15:22
Ganzerik, Castricum

112 melding
Maandag 15-12-2025 om 13:25
Ganzerik, Castricum

112 melding
Zondag 14-12-2025 om 15:01
Boterbloem, 1902GN Castricum

Nieuw bedrijf
December 2025
Bloemgaarde 28, 1902HD Castricum

Direct een e-mail ontvangen bij nieuwe meldingen in deze regio?

Meld je dan GRATIS aan voor de Oozo Alert service voor Noord-End

Instellen

Meer nieuws in Noord-End

Weten hoe eenvoudig het is om af te vallen? Zonder pillen en smeersels en zonder je in het zweet te werken!
Kijk op eenvoudig-afvallen.nl

© 2012 - 2025 OOZO.nl - info@oozo.nl - Gegevens verwijderen? | Disclaimer | Privacy statement