Woning Sleutelbloem 11 Castricum

Sleutelbloem 11, 1902GD Castricum

Ontvang updates voor Noord-End

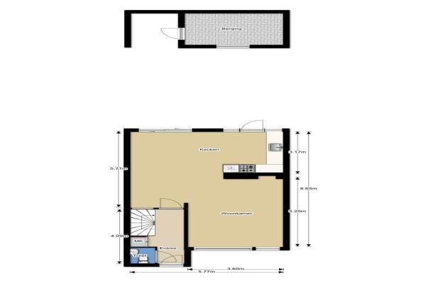
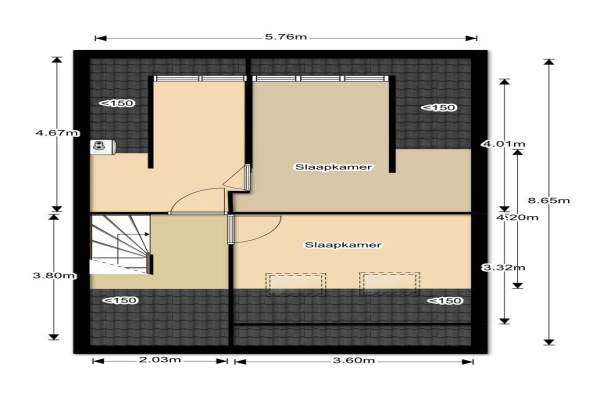
Het adres van deze woning uit 1974 is Sleutelbloem 11 te Castricum. Het pand heeft een oppervlakte van 139m² en een perceeloppervlakte van 220m² en heeft 6 kamers kamers waarvan 5 slaapkamers. De geschatte waarde van deze woning is € 339.000.

Bekijk alle woningen in Noord-End

Gegevens van Eengezinswoning, eindwoning

Bouwjaar
1974
Geschatte waarde
€ 339.000
Oppervlakte
139 m2
Inhoud
470 m3
Aantal kamers
6 kamers
Slaapkamers
5
Badkamers
1 badkamer en 2 aparte toiletten
Soort bouw
Bestaande bouw
Eigendomssituatie
Volle eigendom
Ligging
In woonwijk
Tuin
Achtertuin en voortuin
Achtertuin
84 m² (13,6m diep en 6,2m breed)

Voorzieningen in de buurt

Boodschappen0,9 km
Grote supermarkt0,9 km
Cafetaria1,0 km
Restaurant0,9 km
Huisarts1,1 km
Ziekenhuis3,5 km
Kinderdagverblijf0,4 km
BSO0,4 km
Alle voorzieningen in Noord-End

Binnenkijken bij Sleutelbloem 11 te Castricum

Meer meldingen in deze omgeving

112 melding
Donderdag 12-3-2026 om 07:11
De Bloemen, 1902GS Castricum

112 melding
Woensdag 11-3-2026 om 21:52
De Bloemen, 1902GX Castricum

112 melding
Woensdag 11-3-2026 om 20:07
De Bloemen, 1902GS Castricum

112 melding
Woensdag 11-3-2026 om 14:01
De Bloemen, 1902GW Castricum

112 melding
Woensdag 11-3-2026 om 10:25
Plantenhove, 1902HJ Castricum

112 melding
Dinsdag 10-3-2026 om 17:39
Dotterbloem, 1902GC Castricum

112 melding
Maandag 9-3-2026 om 16:43
Plantenhove, 1902HN Castricum

112 melding
Maandag 9-3-2026 om 16:43
Plantenhove, 1902HN Castricum

Direct een e-mail ontvangen bij nieuwe meldingen in deze regio?

Meld je dan GRATIS aan voor de Oozo Alert service voor Noord-End

Instellen

Meer nieuws in Noord-End

Weten hoe eenvoudig het is om af te vallen? Zonder pillen en smeersels en zonder je in het zweet te werken!
Kijk op eenvoudig-afvallen.nl

© 2012 - 2026 OOZO.nl - info@oozo.nl - Gegevens verwijderen? | Disclaimer | Privacy statement