Woning De Bloemen 13 Castricum

De Bloemen 13, 1902GS Castricum

Ontvang updates voor Noord-End

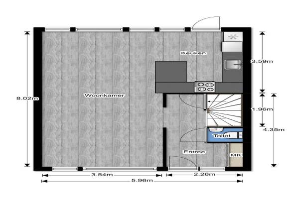
Het adres van deze woning uit 1974 is De Bloemen 13 te Castricum. Het pand heeft een oppervlakte van 124m² en een perceeloppervlakte van 199m² en heeft 5 kamers kamers waarvan 4 slaapkamers. De geschatte waarde van deze woning is € 325.000.

Bekijk alle woningen in Noord-End

Gegevens van Eengezinswoning, tussenwoning

Bouwjaar
1974
Geschatte waarde
€ 325.000
Oppervlakte
124 m2
Inhoud
405 m3
Aantal kamers
5 kamers
Slaapkamers
4
Badkamers
1 badkamer en 1 apart toilet
Soort bouw
Bestaande bouw
Eigendomssituatie
Volle eigendom
Ligging
In woonwijk en beschutte ligging
Tuin
Achtertuin en voortuin
Achtertuin
76 m² (12m diep en 6,3m breed)

Voorzieningen in de buurt

Boodschappen0,9 km
Grote supermarkt0,9 km
Cafetaria1,0 km
Restaurant0,9 km
Huisarts1,1 km
Ziekenhuis3,5 km
Kinderdagverblijf0,4 km
BSO0,4 km
Alle voorzieningen in Noord-End

Binnenkijken bij De Bloemen 13 te Castricum

Meer meldingen in deze omgeving

Nieuw bedrijf
December 2025
Bloemgaarde 28, 1902HD Castricum

112 melding
Dinsdag 9-12-2025 om 20:58
De Bloemen, 1902GW Castricum

112 melding
Dinsdag 9-12-2025 om 18:15
Tormentil, 1902JM Castricum

112 melding
Dinsdag 9-12-2025 om 12:13
Weegbree, 1902JA Castricum

112 melding
Dinsdag 9-12-2025 om 09:51
Vleugeltjesbloem, 1902GH Castricum

112 melding
Zaterdag 6-12-2025 om 07:55
Plantenhove, Castricum

112 melding
Vrijdag 5-12-2025 om 19:37
Tureluur, 1902KM Castricum

112 melding
Vrijdag 5-12-2025 om 08:50
Boterbloem, 1902GN Castricum

Direct een e-mail ontvangen bij nieuwe meldingen in deze regio?

Meld je dan GRATIS aan voor de Oozo Alert service voor Noord-End

Instellen

Meer nieuws in Noord-End

Weten hoe eenvoudig het is om af te vallen? Zonder pillen en smeersels en zonder je in het zweet te werken!
Kijk op eenvoudig-afvallen.nl

© 2012 - 2025 OOZO.nl - info@oozo.nl - Gegevens verwijderen? | Disclaimer | Privacy statement