Woning Pernéstraat 15 Castricum

Pernéstraat 15, 1901AV Castricum

Ontvang updates voor Centrum-Noord

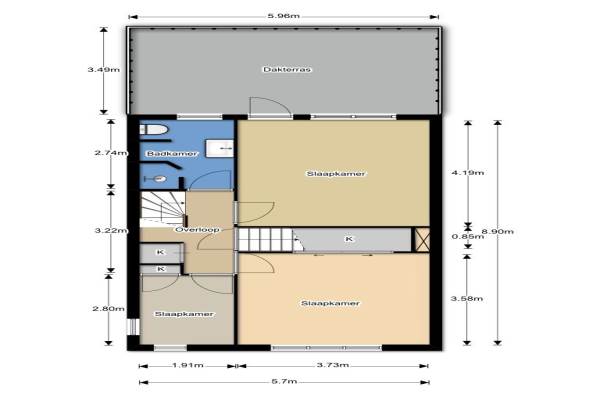
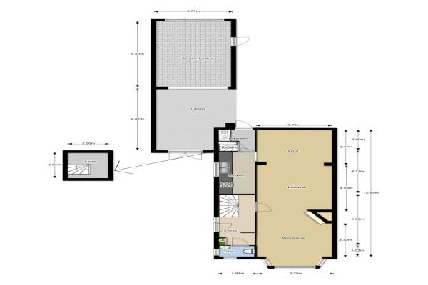
Het adres van deze woning uit 1934 is Pernéstraat 15 te Castricum. Het pand heeft 6 kamers kamers waarvan 5 slaapkamers. De geschatte waarde van deze woning is € 585.000.

Bekijk alle woningen in Centrum-Noord

Gegevens van Eengezinswoning, hoekwoning

Bouwjaar
1934
Geschatte waarde
€ 585.000
Oppervlakte
0 m2
Inhoud
584 m3
Aantal kamers
6 kamers
Slaapkamers
5
Badkamers
2 badkamers en 1 apart toilet
Soort bouw
Bestaande bouw
Eigendomssituatie
Volle eigendom
Ligging
In centrum
Tuin
Achtertuin, voortuin en zijtuin
Achtertuin
366 m² (43m diep en 8,5m breed)

Voorzieningen in de buurt

Boodschappen0,2 km
Grote supermarkt0,3 km
Cafetaria0,3 km
Restaurant0,3 km
Huisarts0,4 km
Ziekenhuis4,7 km
Kinderdagverblijf0,7 km
BSO0,6 km
Alle voorzieningen in Centrum-Noord

Binnenkijken bij Pernéstraat 15 te Castricum

Meer meldingen in deze omgeving

112 melding
Vrijdag 13-2-2026 om 14:26
Burgemeester Boreelstraat, 1901BC Castricum

112 melding
Donderdag 12-2-2026 om 14:16
Prinses Beatrixstraat, 1901CX Castricum

112 melding
Donderdag 12-2-2026 om 14:16
Prinses Beatrixstraat, 1901CX Castricum

112 melding
Donderdag 12-2-2026 om 14:08
Prinses Beatrixstraat, 1901CZ Castricum

112 melding
Woensdag 11-2-2026 om 22:00
Koningin Julianastraat, Castricum

Faillissement
Woensdag 11-2-2026
Geelvinckstraat 68, 1901AJ Castricum

Faillissement
Woensdag 11-2-2026
Geelvinckstraat 68, 1901AJ Castricum

Faillissement
Woensdag 11-2-2026
Geelvinckstraat 68, 1901AJ Castricum

Direct een e-mail ontvangen bij nieuwe meldingen in deze regio?

Meld je dan GRATIS aan voor de Oozo Alert service voor Centrum-Noord

Instellen

Meer nieuws in Centrum-Noord

Weten hoe eenvoudig het is om af te vallen? Zonder pillen en smeersels en zonder je in het zweet te werken!
Kijk op eenvoudig-afvallen.nl

© 2012 - 2026 OOZO.nl - info@oozo.nl - Gegevens verwijderen? | Disclaimer | Privacy statement