Woning Jacob Rensdorpstraat 18 Castricum

Jacob Rensdorpstraat 18, 1901RG Castricum

Ontvang updates voor Centrum-Zuid

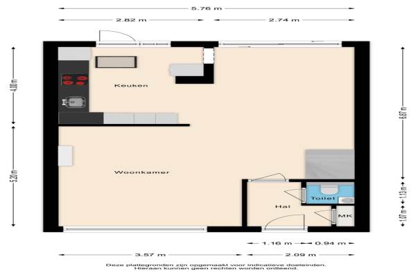
Het adres van deze woning uit 1968 is Jacob Rensdorpstraat 18 te Castricum. Het pand heeft een oppervlakte van 115m² en een perceeloppervlakte van 149m² en heeft 6 kamers kamers waarvan 5 slaapkamers. De geschatte waarde van deze woning is € 400.000.

Bekijk alle woningen in Centrum-Zuid

Gegevens van Eengezinswoning, tussenwoning

Bouwjaar
1968
Geschatte waarde
€ 400.000
Oppervlakte
115 m2
Inhoud
360 m3
Aantal kamers
6 kamers
Slaapkamers
5
Badkamers
1 badkamer en 1 apart toilet
Soort bouw
Bestaande bouw
Eigendomssituatie
Volle eigendom
Ligging
Aan rustige weg, in centrum en in woonwijk
Tuin
Achtertuin en voortuin
Achtertuin
66 m² (11 meter diep en 6 meter breed)

Voorzieningen in de buurt

Boodschappen0,4 km
Grote supermarkt0,5 km
Cafetaria0,5 km
Restaurant0,4 km
Huisarts0,7 km
Ziekenhuis4,8 km
Kinderdagverblijf0,7 km
BSO0,5 km
Alle voorzieningen in Centrum-Zuid

Binnenkijken bij Jacob Rensdorpstraat 18 te Castricum

Meer meldingen in deze omgeving

Binnenkijken bij
Zaterdag 11-10-2025
Cieweg 16, 1901GH Castricum

112 melding
Vrijdag 10-10-2025 om 13:21
Meester Ludwigstraat, 1901PS Castricum

112 melding
Vrijdag 10-10-2025 om 11:40
G. Kuijs-Piepersstraat, Castricum

112 melding
Vrijdag 10-10-2025 om 10:23
Meester Ludwigstraat, 1901PS Castricum

112 melding
Vrijdag 10-10-2025 om 09:51
Wayenburgh, 1901GB Castricum

112 melding
Vrijdag 10-10-2025 om 09:51
Wayenburgh, 1901GB Castricum

112 melding
Vrijdag 10-10-2025 om 09:19
Wayenburgh, 1901GB Castricum

112 melding
Vrijdag 10-10-2025 om 09:19
Wayenburgh, 1901GB Castricum

Direct een e-mail ontvangen bij nieuwe meldingen in deze regio?

Meld je dan GRATIS aan voor de Oozo Alert service voor Centrum-Zuid

Instellen

Meer nieuws in Centrum-Zuid

Weten hoe eenvoudig het is om af te vallen? Zonder pillen en smeersels en zonder je in het zweet te werken!
Kijk op eenvoudig-afvallen.nl

© 2012 - 2025 OOZO.nl - info@oozo.nl - Gegevens verwijderen? | Disclaimer | Privacy statement