Woning Schoolweg 41 Limmen

Schoolweg 41, 1906AD Limmen

Ontvang updates voor Limmen Centrum

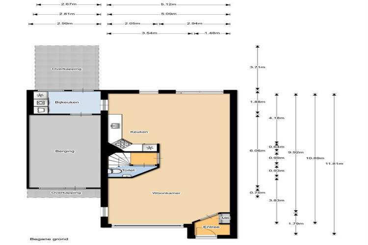
Het adres van deze woning uit 1991 is Schoolweg 41 te Limmen. Het pand heeft een oppervlakte van 132m² en een perceeloppervlakte van 230m² en heeft 6 kamers kamers waarvan 5 slaapkamers. De geschatte waarde van deze woning is € 375.000.

Bekijk alle woningen in Limmen Centrum

Gegevens van Eengezinswoning, 2-onder-1-kapwoning

Bouwjaar
1991
Geschatte waarde
€ 375.000
Oppervlakte
132 m2
Inhoud
498 m3
Aantal kamers
6 kamers
Slaapkamers
5
Badkamers
1 badkamer en 1 apart toilet
Soort bouw
Bestaande bouw
Eigendomssituatie
Volle eigendom
Ligging
Aan rustige weg en in woonwijk
Tuin
Achtertuin en voortuin
Achtertuin
88 m² (11m diep en 8m breed)

Voorzieningen in de buurt

Boodschappen0,5 km
Grote supermarkt0,5 km
Cafetaria0,5 km
Restaurant0,5 km
Huisarts0,7 km
Ziekenhuis0,7 km
Kinderdagverblijf0,5 km
BSO0,6 km
Alle voorzieningen in Limmen Centrum

Binnenkijken bij Schoolweg 41 te Limmen

Meer meldingen in deze omgeving

112 melding
Vrijdag 16-1-2026 om 09:06
Middenweg, 1906AP Limmen

112 melding
Donderdag 15-1-2026 om 17:48
Middenweg, 1906AP Limmen

112 melding
Donderdag 15-1-2026 om 13:07
Dusseldorperweg, 1906AJ Limmen

112 melding
Donderdag 15-1-2026 om 13:07
Dusseldorperweg, 1906AJ Limmen

112 melding
Donderdag 15-1-2026 om 13:02
Zonnedauw, 1906HB Limmen

112 melding
Woensdag 14-1-2026 om 17:22
Zonnedauw, 1906HB Limmen

112 melding
Woensdag 14-1-2026 om 15:15
Dusseldorperweg, 1906AJ Limmen

112 melding
Woensdag 14-1-2026 om 15:10
Dusseldorperweg, 1906AJ Limmen

Direct een e-mail ontvangen bij nieuwe meldingen in deze regio?

Meld je dan GRATIS aan voor de Oozo Alert service voor Limmen Centrum

Instellen

Meer nieuws in Limmen Centrum

Weten hoe eenvoudig het is om af te vallen? Zonder pillen en smeersels en zonder je in het zweet te werken!
Kijk op eenvoudig-afvallen.nl

© 2012 - 2026 OOZO.nl - info@oozo.nl - Gegevens verwijderen? | Disclaimer | Privacy statement