Woning Roelat 19 Limmen

Roelat 19, 1906VE Limmen

Ontvang updates voor Limmen Centrum

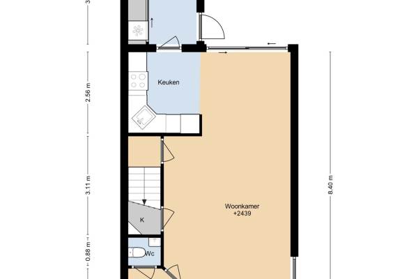
Het adres van deze woning uit 1995 is Roelat 19 te Limmen. Het pand heeft een oppervlakte van 106m² en een perceeloppervlakte van 165m² en heeft 5 kamers kamers waarvan 4 slaapkamers. De geschatte waarde van deze woning is € 445.000.

Bekijk alle woningen in Limmen Centrum

Gegevens van Eengezinswoning, hoekwoning

Bouwjaar
1995
Geschatte waarde
€ 445.000
Oppervlakte
106 m2
Inhoud
374 m3
Aantal kamers
5 kamers
Slaapkamers
4
Badkamers
1 badkamer en 1 apart toilet
Soort bouw
Bestaande bouw
Eigendomssituatie
Volle eigendom
Ligging
In woonwijk
Tuin
Achtertuin en voortuin
Achtertuin
44 m² (7,11 meter diep en 6,25 meter breed)

Voorzieningen in de buurt

Boodschappen0,5 km
Grote supermarkt0,5 km
Cafetaria0,5 km
Restaurant0,5 km
Huisarts0,7 km
Ziekenhuis0,7 km
Kinderdagverblijf0,5 km
BSO0,6 km
Alle voorzieningen in Limmen Centrum

Binnenkijken bij Roelat 19 te Limmen

Meer meldingen in deze omgeving

112 melding
Dinsdag 2-12-2025 om 14:53
Dusseldorperweg, 1906AJ Limmen

112 melding
Dinsdag 2-12-2025 om 12:52
Dusseldorperweg, 1906AJ Limmen

Binnenkijken bij
Dinsdag 2-12-2025
Enterij 39, 1906BX Limmen

Nieuw bedrijf
December 2025
Visweg 57, 1906CP Limmen

112 melding
Maandag 1-12-2025 om 14:52
Kamvaren, 1906HH Limmen

112 melding
Maandag 1-12-2025 om 10:13
Kamvaren, 1906HH Limmen

112 melding
Maandag 1-12-2025 om 10:13
Kamvaren, 1906HH Limmen

112 melding
Zondag 30-11-2025 om 13:12
Thalia, 1906XZ Limmen

Direct een e-mail ontvangen bij nieuwe meldingen in deze regio?

Meld je dan GRATIS aan voor de Oozo Alert service voor Limmen Centrum

Instellen

Meer nieuws in Limmen Centrum

Weten hoe eenvoudig het is om af te vallen? Zonder pillen en smeersels en zonder je in het zweet te werken!
Kijk op eenvoudig-afvallen.nl

© 2012 - 2025 OOZO.nl - info@oozo.nl - Gegevens verwijderen? | Disclaimer | Privacy statement