Woning Thalia 5 Limmen

Thalia 5, 1906XZ Limmen

Ontvang updates voor Limmen Centrum

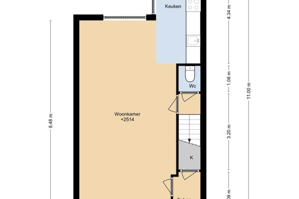
Het adres van deze woning uit 1991 is Thalia 5 te Limmen. Het pand heeft een oppervlakte van 104m² en een perceeloppervlakte van 124m² en heeft 5 kamers kamers waarvan 4 slaapkamers. De geschatte waarde van deze woning is € 400.000.

Bekijk alle woningen in Limmen Centrum

Gegevens van Eengezinswoning, tussenwoning

Bouwjaar
1991
Geschatte waarde
€ 400.000
Oppervlakte
104 m2
Inhoud
368 m3
Aantal kamers
5 kamers
Slaapkamers
4
Badkamers
1 badkamer en 1 apart toilet
Soort bouw
Bestaande bouw
Eigendomssituatie
Volle eigendom
Ligging
Beschutte ligging en in woonwijk
Tuin
Achtertuin en voortuin
Achtertuin
50 m² (9,5 meter diep en 5,25 meter breed)

Voorzieningen in de buurt

Boodschappen0,5 km
Grote supermarkt0,5 km
Cafetaria0,5 km
Restaurant0,5 km
Huisarts0,7 km
Ziekenhuis0,7 km
Kinderdagverblijf0,5 km
BSO0,6 km
Alle voorzieningen in Limmen Centrum

Binnenkijken bij Thalia 5 te Limmen

Meer meldingen in deze omgeving

112 melding
Donderdag 9-4-2026 om 15:08
Kerkweg, 1906AT Limmen

112 melding
Woensdag 8-4-2026 om 17:02
Middenweg, Limmen

112 melding
Woensdag 8-4-2026 om 11:36
Middenweg, 1906AR Limmen

Binnenkijken bij
Maandag 6-4-2026
Dusseldorperweg 45, 1906AH Limmen

112 melding
Zaterdag 4-4-2026 om 15:51
Zomerschoon, 1906XW Limmen

112 melding
Donderdag 2-4-2026 om 10:25
Keizerskroon, 1906BW Limmen

112 melding
Woensdag 1-4-2026 om 13:58
Keizerskroon, 1906BW Limmen

112 melding
Woensdag 1-4-2026 om 09:43
Keizerskroon, 1906BW Limmen

Direct een e-mail ontvangen bij nieuwe meldingen in deze regio?

Meld je dan GRATIS aan voor de Oozo Alert service voor Limmen Centrum

Instellen

Meer nieuws in Limmen Centrum

Weten hoe eenvoudig het is om af te vallen? Zonder pillen en smeersels en zonder je in het zweet te werken!
Kijk op eenvoudig-afvallen.nl

© 2012 - 2026 OOZO.nl - info@oozo.nl - Gegevens verwijderen? | Disclaimer | Privacy statement