Woning Absalon 22 Limmen

Absalon 22, 1906JA Limmen

Ontvang updates voor Limmen Centrum

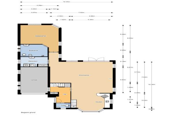
Het adres van deze woning uit 2001 is Absalon 22 te Limmen. Het pand heeft een oppervlakte van 184m² en een perceeloppervlakte van 546m² en heeft 6 kamers kamers waarvan 5 slaapkamers. De geschatte waarde van deze woning is € 675.000.

Bekijk alle woningen in Limmen Centrum

Gegevens van Villa, vrijstaande woning

Bouwjaar
2001
Geschatte waarde
€ 675.000
Oppervlakte
184 m2
Inhoud
817 m3
Aantal kamers
6 kamers
Slaapkamers
5
Badkamers
1 badkamer en 2 aparte toiletten
Soort bouw
Bestaande bouw
Eigendomssituatie
Volle eigendom
Ligging
Aan rustige weg, in woonwijk, vrij uitzicht en landelijk gelegen
Tuin
Tuin rondom

Voorzieningen in de buurt

Boodschappen0,5 km
Grote supermarkt0,5 km
Cafetaria0,5 km
Restaurant0,5 km
Huisarts0,7 km
Ziekenhuis0,7 km
Kinderdagverblijf0,5 km
BSO0,6 km
Alle voorzieningen in Limmen Centrum

Binnenkijken bij Absalon 22 te Limmen

Meer meldingen in deze omgeving

112 melding
Vrijdag 16-1-2026 om 09:06
Middenweg, 1906AP Limmen

112 melding
Donderdag 15-1-2026 om 17:48
Middenweg, 1906AP Limmen

112 melding
Donderdag 15-1-2026 om 13:07
Dusseldorperweg, 1906AJ Limmen

112 melding
Donderdag 15-1-2026 om 13:07
Dusseldorperweg, 1906AJ Limmen

112 melding
Donderdag 15-1-2026 om 13:02
Zonnedauw, 1906HB Limmen

112 melding
Woensdag 14-1-2026 om 17:22
Zonnedauw, 1906HB Limmen

112 melding
Woensdag 14-1-2026 om 15:15
Dusseldorperweg, 1906AJ Limmen

112 melding
Woensdag 14-1-2026 om 15:10
Dusseldorperweg, 1906AJ Limmen

Direct een e-mail ontvangen bij nieuwe meldingen in deze regio?

Meld je dan GRATIS aan voor de Oozo Alert service voor Limmen Centrum

Instellen

Meer nieuws in Limmen Centrum

Weten hoe eenvoudig het is om af te vallen? Zonder pillen en smeersels en zonder je in het zweet te werken!
Kijk op eenvoudig-afvallen.nl

© 2012 - 2026 OOZO.nl - info@oozo.nl - Gegevens verwijderen? | Disclaimer | Privacy statement