Woning Burgemeester Nieuwenhuijsenstraat 34 Limmen

Burgemeester Nieuwenhuijsenstraat 34, 1906CM Limmen

Ontvang updates voor Limmen West

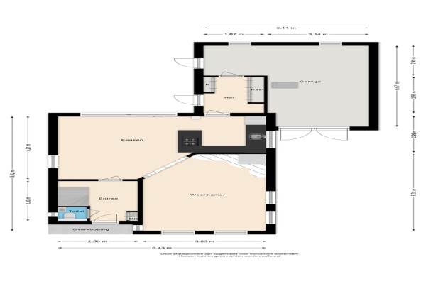
Het adres van deze woning uit 1986 is Burgemeester Nieuwenhuijsenstraat 34 te Limmen. Het pand heeft een oppervlakte van 119m² en een perceeloppervlakte van 404m² en heeft 4 kamers kamers waarvan 3 slaapkamers. De geschatte waarde van deze woning is € 845.000.

Bekijk alle woningen in Limmen West

Gegevens van Eengezinswoning, vrijstaande woning

Bouwjaar
1986
Geschatte waarde
€ 845.000
Oppervlakte
119 m2
Inhoud
597 m3
Aantal kamers
4 kamers
Slaapkamers
3
Badkamers
1 badkamer en 1 apart toilet
Soort bouw
Bestaande bouw
Eigendomssituatie
Volle eigendom
Ligging
Aan rustige weg en in woonwijk
Tuin
Achtertuin en voortuin
Achtertuin
165 m² (12,96 meter diep en 12,71 meter breed)

Voorzieningen in de buurt

Boodschappen0,6 km
Grote supermarkt0,9 km
Cafetaria0,7 km
Restaurant0,7 km
Huisarts1,2 km
Ziekenhuis1,2 km
Kinderdagverblijf0,6 km
BSO0,6 km
Alle voorzieningen in Limmen West

Binnenkijken bij Burgemeester Nieuwenhuijsenstraat 34 te Limmen

Meer meldingen in deze omgeving

112 melding
Maandag 27-4-2026 om 00:07
Burgemeester Nieuwenhuijsenstraat, Limmen

112 melding
Vrijdag 24-4-2026 om 13:59
Hogeweg, 1906 Limmen

112 melding
Vrijdag 24-4-2026 om 11:28
Hogeweg, 1906CW Limmen

112 melding
Vrijdag 24-4-2026 om 09:25
1906CC Limmen

112 melding
Vrijdag 24-4-2026 om 09:10
Hogeweg, 1906CW Limmen

Nieuw bedrijf
April 2026
Terwiel 27, 1906EW Limmen

Nieuw bedrijf
April 2026
Rijksweg 9c, 1906BC Limmen

112 melding
Donderdag 23-4-2026 om 09:41
Pagenlaan, 1906CT Limmen

Direct een e-mail ontvangen bij nieuwe meldingen in deze regio?

Meld je dan GRATIS aan voor de Oozo Alert service voor Limmen West

Instellen

Meer nieuws in Limmen West

Weten hoe eenvoudig het is om af te vallen? Zonder pillen en smeersels en zonder je in het zweet te werken!
Kijk op eenvoudig-afvallen.nl

© 2012 - 2026 OOZO.nl - info@oozo.nl - Gegevens verwijderen? | Disclaimer | Privacy statement