Woning Kapelweg 9 Limmen

Kapelweg 9, 1906EA Limmen

Ontvang updates voor Limmen West

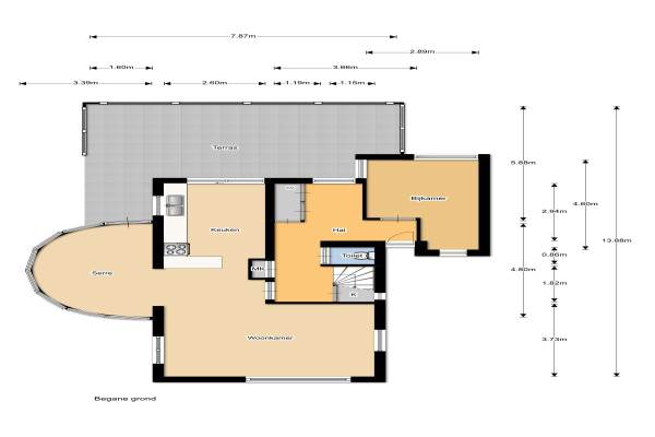
Het adres van deze woning uit 1962 is Kapelweg 9 te Limmen. Het pand heeft een oppervlakte van 117m² en een perceeloppervlakte van 595m² en heeft 4 kamers kamers waarvan 3 slaapkamers. De geschatte waarde van deze woning is € 385.000.

Bekijk alle woningen in Limmen West

Gegevens van Eengezinswoning, vrijstaande woning

Bouwjaar
1962
Geschatte waarde
€ 385.000
Oppervlakte
117 m2
Inhoud
411 m3
Aantal kamers
4 kamers
Slaapkamers
3
Badkamers
1 badkamer en 1 apart toilet
Soort bouw
Bestaande bouw
Eigendomssituatie
Volle eigendom
Ligging
Aan rustige weg en beschutte ligging
Tuin
Tuin rondom

Voorzieningen in de buurt

Boodschappen0,6 km
Grote supermarkt0,9 km
Cafetaria0,7 km
Restaurant0,7 km
Huisarts1,2 km
Ziekenhuis1,2 km
Kinderdagverblijf0,6 km
BSO0,6 km
Alle voorzieningen in Limmen West

Binnenkijken bij Kapelweg 9 te Limmen

Meer meldingen in deze omgeving

Nieuw bedrijf
December 2025
Hogeweg 35, 1906CB Limmen

112 melding
Woensdag 3-12-2025 om 13:50
De Wieken, Limmen

112 melding
Woensdag 3-12-2025 om 13:50
De Wieken, Limmen

112 melding
Woensdag 3-12-2025 om 13:50
De Wieken, Limmen

112 melding
Woensdag 3-12-2025 om 13:10
Westerweg, 1906EG Limmen

112 melding
Woensdag 3-12-2025 om 13:10
Westerweg, 1906EG Limmen

112 melding
Woensdag 3-12-2025 om 07:54
Westerweg, 1906EN Limmen

112 melding
Woensdag 3-12-2025 om 07:54
Westerweg, 1906EN Limmen

Direct een e-mail ontvangen bij nieuwe meldingen in deze regio?

Meld je dan GRATIS aan voor de Oozo Alert service voor Limmen West

Instellen

Meer nieuws in Limmen West

Weten hoe eenvoudig het is om af te vallen? Zonder pillen en smeersels en zonder je in het zweet te werken!
Kijk op eenvoudig-afvallen.nl

© 2012 - 2025 OOZO.nl - info@oozo.nl - Gegevens verwijderen? | Disclaimer | Privacy statement