Woning Hogeweg 48 Limmen

Hogeweg 48, 1906CE Limmen

Ontvang updates voor Limmen West

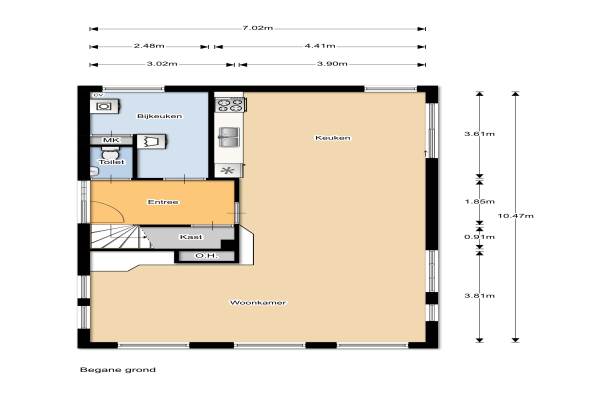
Het adres van deze woning is Hogeweg 48 te Limmen. Het pand heeft een oppervlakte van 131m² en een perceeloppervlakte van 583m² en heeft 6 kamers kamers waarvan 5 slaapkamers. De geschatte waarde van deze woning is € 498.000.

Bekijk alle woningen in Limmen West

Gegevens van Landhuis, vrijstaande woning

Geschatte waarde
€ 498.000
Oppervlakte
131 m2
Inhoud
436 m3
Aantal kamers
6 kamers
Slaapkamers
5
Badkamers
1 badkamer en 1 apart toilet
Soort bouw
Bestaande bouw
Eigendomssituatie
Volle eigendom
Ligging
Aan rustige weg
Tuin
Tuin rondom

Voorzieningen in de buurt

Boodschappen0,6 km
Grote supermarkt0,9 km
Cafetaria0,7 km
Restaurant0,7 km
Huisarts1,2 km
Ziekenhuis1,2 km
Kinderdagverblijf0,6 km
BSO0,6 km
Alle voorzieningen in Limmen West

Binnenkijken bij Hogeweg 48 te Limmen

Meer meldingen in deze omgeving

112 melding
Vrijdag 16-1-2026 om 09:12
Burgemeester Nieuwenhuijsenstraat, Limmen

112 melding
Donderdag 15-1-2026 om 15:47
Hogeweg, 1906CB Limmen

112 melding
Donderdag 15-1-2026 om 11:29
Burgemeester Nieuwenhuijsenstraat, Limmen

Binnenkijken bij
Donderdag 15-1-2026
Rijksweg 9B, 1906BC Limmen

Faillissement
Woensdag 14-1-2026
Zijakkertje 2, 1906BE Limmen

Faillissement
Woensdag 14-1-2026
Zijakkertje 2, 1906BE Limmen

Faillissement
Woensdag 14-1-2026
Zijakkertje 2, 1906BE Limmen

Faillissement
Woensdag 14-1-2026
Zijakkertje 2, 1906BE Limmen

Direct een e-mail ontvangen bij nieuwe meldingen in deze regio?

Meld je dan GRATIS aan voor de Oozo Alert service voor Limmen West

Instellen

Meer nieuws in Limmen West

Weten hoe eenvoudig het is om af te vallen? Zonder pillen en smeersels en zonder je in het zweet te werken!
Kijk op eenvoudig-afvallen.nl

© 2012 - 2026 OOZO.nl - info@oozo.nl - Gegevens verwijderen? | Disclaimer | Privacy statement